パークウェル文京千石の賃貸情報
04/11パークウェル文京千石の賃貸情報
04/11
パークウェル文京千石の総合評価
総合評価
3.5
3.5
| セキュリティ | : |
築年数 | : |
| 建物設備 | : |
駅徒歩 | : |
| セキュリティ: | |
| 建物設備: | |
| 築年数: | |
| 駅徒歩: |
この物件について
| 物件名 | パークウェル文京千石 | ||
|---|---|---|---|
| 住所 | 東京都文京区千石2-20-12 | ||
| 最寄駅 |
都営三田線 千石駅 徒歩8分 東京メトロ丸ノ内線 茗荷谷駅 徒歩14分 東京メトロ丸ノ内線 新大塚駅 徒歩15分 |
||
| 学区 | 林町小学校 | ||
| 構造 | RC | 総階数 | 地上6階建て |
| 賃料 | 90,000円 | 管理費 | 0円 |
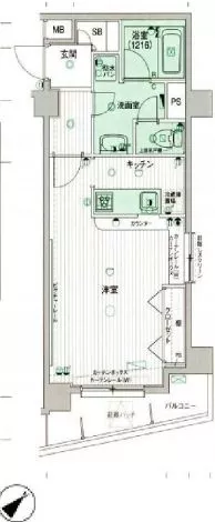
| 間取り | 1K | 面積 | 21.00㎡ |
| 駐車場 | 築年月 | 2005年11月 | |
| 問合番号 | 50026 | 更新日 | 2026/04/11 |
| 設備 | オートロック、法人契約相談可、駐輪場有、宅配BOX、BS・CS、光ファイバー、インターネット対応、専用ゴミ置場、防犯カメラ、TVモニター付インターホン、分譲賃貸、東京大学自転車圏、林町小学校エリア、ガスキッチン、システムキッチン、エアコン、フローリング、バストイレ別、室内洗濯機置場、収納 | ||
| 備考 | 詳細閲覧ありがとうございます。最新の空室の確認、内覧のご予約はメール・電話にてお問い合わせください。 文京区の賃貸マンション・賃貸アパートはベステックスにおまかせください! | ||
物件概要
文京区千石2丁目の高台、大通りに面していない落ち着いた住環境の分譲マンション【パークウェル文京千石】のご紹介です!
建物内の多くのお部屋が1Kタイプの、主に単身者向けのマンション。
自転車圏内には『東洋大学』『東京大学』『お茶の水女子大学』といった有名大学もあるので、学生さんにもオススメの立地です♪
周辺は住宅街で非常に静かで落ち着いた環境なので、勉強に集中することの出来る環境でもあります!
もちろん、落ち着いた住環境をお求めの社会人の方にもオススメです!
2005年11月築、鉄筋コンクリート造地上6階建ての建物で、分譲マンションならではの綺麗な外観・共用部や、充実した設備類も魅力です♪
敷地内に設置された防犯カメラや、エントランスのTVモニター付きオートロックなど、セキュリティ面に関しては女性でも安心してお住まい頂ける内容です!
更に、荷物の受け取りに便利な宅配ボックスや、24時間利用可能なゴミ置き場など、忙しい方にも人気の設備が揃っています♪
周辺の環境についても、歩いてすぐのところにスーパーマーケット『マルエツプチ』があったり、最寄り駅の千石駅近くの複合施設『文京グリーンコート』には『ピーコックストア』をはじめ書店に郵便局やクリニックなど、何でも揃っているので非常に便利です!
周辺には『小石川植物園』や『千石緑地』といった自然豊かなスポットもあり、都心にいながら緑を感じられる環境♪
交通の便に関しては、最寄り駅の都営三田線『千石駅』までは徒歩8分。徒歩圏内には東京メトロ丸ノ内線『茗荷谷駅』も御座います!
『千石駅』からは『大手町駅』に10分程度、『三田駅』にも20分で行けるので都心への通勤も楽々♪三田線利用で北は板橋方面、南は千代田区・港区・目黒区・品川区方面へダイレクトアクセスが可能です!
駅からやや距離がある影響で、近い内容の物件と比較すると家賃相場も若干安め♪
分譲賃貸タイプの単身用物件としてはお得感有り!
是非お問い合わせください!
建物内の多くのお部屋が1Kタイプの、主に単身者向けのマンション。
自転車圏内には『東洋大学』『東京大学』『お茶の水女子大学』といった有名大学もあるので、学生さんにもオススメの立地です♪
周辺は住宅街で非常に静かで落ち着いた環境なので、勉強に集中することの出来る環境でもあります!
もちろん、落ち着いた住環境をお求めの社会人の方にもオススメです!
2005年11月築、鉄筋コンクリート造地上6階建ての建物で、分譲マンションならではの綺麗な外観・共用部や、充実した設備類も魅力です♪
敷地内に設置された防犯カメラや、エントランスのTVモニター付きオートロックなど、セキュリティ面に関しては女性でも安心してお住まい頂ける内容です!
更に、荷物の受け取りに便利な宅配ボックスや、24時間利用可能なゴミ置き場など、忙しい方にも人気の設備が揃っています♪
周辺の環境についても、歩いてすぐのところにスーパーマーケット『マルエツプチ』があったり、最寄り駅の千石駅近くの複合施設『文京グリーンコート』には『ピーコックストア』をはじめ書店に郵便局やクリニックなど、何でも揃っているので非常に便利です!
周辺には『小石川植物園』や『千石緑地』といった自然豊かなスポットもあり、都心にいながら緑を感じられる環境♪
交通の便に関しては、最寄り駅の都営三田線『千石駅』までは徒歩8分。徒歩圏内には東京メトロ丸ノ内線『茗荷谷駅』も御座います!
『千石駅』からは『大手町駅』に10分程度、『三田駅』にも20分で行けるので都心への通勤も楽々♪三田線利用で北は板橋方面、南は千代田区・港区・目黒区・品川区方面へダイレクトアクセスが可能です!
駅からやや距離がある影響で、近い内容の物件と比較すると家賃相場も若干安め♪
分譲賃貸タイプの単身用物件としてはお得感有り!
是非お問い合わせください!
掲載情報について
※随時更新を心がけておりますが、掲載している物件が万が一成約している場合もございますので予めご了承下さいませ。
※駐車場・駐輪場・バイク置場の空き状況についてはお問い合わせ下さい。
※ペット飼育やSOHO利用・楽器使用の可否に関しては、建物の管理規約で可能になっていても、お部屋の所有者様によって禁止の場合もございますので御注意下さい。
詳細はメールやお電話にてスタッフまでご相談下さい。
※駐車場・駐輪場・バイク置場の空き状況についてはお問い合わせ下さい。
※ペット飼育やSOHO利用・楽器使用の可否に関しては、建物の管理規約で可能になっていても、お部屋の所有者様によって禁止の場合もございますので御注意下さい。
詳細はメールやお電話にてスタッフまでご相談下さい。
パークウェル文京千石の周辺地図
パークウェル文京千石のご成約済み部屋一覧
| 所在階 | 間取り | 面積 | 賃料 | 管理費 | 敷金 | 礼金 | お問い合わせ | ||||
|---|---|---|---|---|---|---|---|---|---|---|---|
| 1階 | 1K | 22.48㎡ | … | … | … | … | 契約済み | 所在階*** 間取り1K |
面積22.48㎡ 管理費*** |
敷金*** 礼金*** |
契約済み |
| 1階 | 1K | 20.72㎡ | … | … | … | … | 契約済み | 所在階*** 間取り1K |
面積20.72㎡ 管理費*** |
敷金*** 礼金*** |
契約済み |
| 1階 | 1LDK | 38.20㎡ | … | … | … | … | 契約済み | 所在階*** 間取り1LDK |
面積38.20㎡ 管理費*** |
敷金*** 礼金*** |
契約済み |
| 2階 | 1K | 22.08㎡ | … | … | … | … | 契約済み | 所在階*** 間取り1K |
面積22.08㎡ 管理費*** |
敷金*** 礼金*** |
契約済み |
| 2階 | 1K | 22.68㎡ | … | … | … | … | 契約済み | 所在階*** 間取り1K |
面積22.68㎡ 管理費*** |
敷金*** 礼金*** |
契約済み |
| 2階 | 1K | 22.48㎡ | … | … | … | … | 契約済み | 所在階*** 間取り1K |
面積22.48㎡ 管理費*** |
敷金*** 礼金*** |
契約済み |
| 2階 | 1K | 22.48㎡ | … | … | … | … | 契約済み | 所在階*** 間取り1K |
面積22.48㎡ 管理費*** |
敷金*** 礼金*** |
契約済み |
| 2階 | 1K | 22.80㎡ | … | … | … | … | 契約済み | 所在階*** 間取り1K |
面積22.80㎡ 管理費*** |
敷金*** 礼金*** |
契約済み |
| 2階 | 1K | 20.72㎡ | … | … | … | … | 契約済み | 所在階*** 間取り1K |
面積20.72㎡ 管理費*** |
敷金*** 礼金*** |
契約済み |
| 3階 | 1K | 22.08㎡ | … | … | … | … | 契約済み | 所在階*** 間取り1K |
面積22.08㎡ 管理費*** |
敷金*** 礼金*** |
契約済み |
| 3階 | 1K | 22.68㎡ | … | … | … | … | 契約済み | 所在階*** 間取り1K |
面積22.68㎡ 管理費*** |
敷金*** 礼金*** |
契約済み |
| 3階 | 1K | 22.48㎡ | … | … | … | … | 契約済み | 所在階*** 間取り1K |
面積22.48㎡ 管理費*** |
敷金*** 礼金*** |
契約済み |
| 3階 | 1K | 22.80㎡ | … | … | … | … | 契約済み | 所在階*** 間取り1K |
面積22.80㎡ 管理費*** |
敷金*** 礼金*** |
契約済み |
| 3階 | 1K | 26.40㎡ | … | … | … | … | 契約済み | 所在階*** 間取り1K |
面積26.40㎡ 管理費*** |
敷金*** 礼金*** |
契約済み |
| 4階 | 1K | 22.80㎡ | … | … | … | … | 契約済み | 所在階*** 間取り1K |
面積22.80㎡ 管理費*** |
敷金*** 礼金*** |
契約済み |
| 4階 | 1K | 26.40㎡ | … | … | … | … | 契約済み | 所在階*** 間取り1K |
面積26.40㎡ 管理費*** |
敷金*** 礼金*** |
契約済み |
| 4階 | 1K | 20.72㎡ | … | … | … | … | 契約済み | 所在階*** 間取り1K |
面積20.72㎡ 管理費*** |
敷金*** 礼金*** |
契約済み |
| 5階 | 1K | 21.00㎡ | … | … | … | … | 契約済み | 所在階*** 間取り1K |
面積21.00㎡ 管理費*** |
敷金*** 礼金*** |
契約済み |
| 5階 | 1K | 20.72㎡ | … | … | … | … | 契約済み | 所在階*** 間取り1K |
面積20.72㎡ 管理費*** |
敷金*** 礼金*** |
契約済み |
| 6階 | 1K | 32.79㎡ | … | … | … | … | 契約済み | 所在階*** 間取り1K |
面積32.79㎡ 管理費*** |
敷金*** 礼金*** |
契約済み |












都営三田線・千石駅が最寄りで徒歩8分ほどでアクセスが可能です!
一駅隣には巣鴨駅、反対側には水道橋駅や大手町駅など、ターミナル駅までの接続が良く、通勤には便利な路線です。
駅までは坂道がほとんどなくなだらかで、身体的な負担は少なく済みます。
不忍通りから一本中に入っておりますので、車やトラックなどの騒音は気になりにくい環境かと思います。
千石駅前にはグリーンコートという商業施設がございます!
敷地内のスーパー・ピーコックストアは23時まで営業しており、
店内も都内のスーパーとしてはかなりゆとりがございますので、
自炊派の方やお仕事でご帰宅が遅くなってしまっても安心です。
物件共用部分ではオートロックや宅配ボックスなど、
利便性の高い設備は一通り揃っております。
ゴミ出しも敷地内で完結いたしますので不規則な生活スタイルの方も安心です。
是非ご検討くださいませ。