スイートパーク小石川
♥お気に入りスイートパーク小石川
♥お気に入り




























スイートパーク小石川 4階
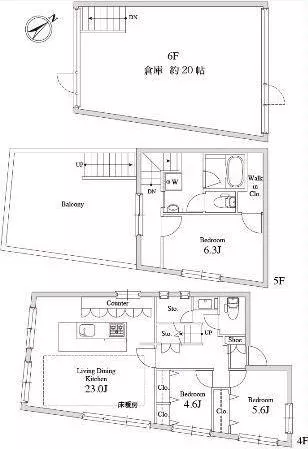
賃料 要問合せ(※) 管理費 敷金 1ヶ月 礼金 2ヶ月 間取り 3LDK 面積 117.41㎡ 階数 4階 状態 要問合せ(※) 入居 相談 更新料 新賃料の1ヶ月分 諸費用 取引態様 媒介 設備 駐車場有、インターネット対応、東京大学自転車圏、窪町小学校エリア、2階以上、メゾネット、ルーフバルコニー、システムキッチン、ウォークインクローゼット、エアコン、フローリング、独立洗面台、追い焚き機能、バストイレ別、室内洗濯機置場、収納、角部屋、2人入居可、保証会社利用、法人契約相談可 物件概要
物件名 スイートパーク小石川 所在地 東京都文京区小石川5-3-1 最寄駅 東京メトロ丸ノ内線 茗荷谷駅 徒歩2分
東京メトロ有楽町線 江戸川橋駅 徒歩17分
東京メトロ有楽町線 護国寺駅 徒歩16分
学区 窪町小学校 構造 鉄骨 階数 地上6階建て 築年月 1976年12月 駐車場 無 備考 【スイートパーク小石川】の賃貸マンション情報です。 詳細閲覧ありがとうございます。最新の空室の確認、内覧のご予約はメール・電話にてお問い合わせください。 文京区の賃貸マンション・賃貸アパートはベステックスにおまかせください! 問合番号 456 更新日 2022/03/05 このお部屋について
【スイートパーク小石川】のご紹介です。鉄骨造6階建て。
専有面積117.41平米の広々3LDKファミリータイプ。
戸建て感覚のメゾネットタイプのお部屋になります♪
1976年築で外観・共用部分は古く感じるかも知れませんが、お部屋はH23年11月に室内フルリフォームのメゾネット。
玄関は4階。4、5、6階のメゾネット。
ルームシェアのご相談も受け付けております!
是非ご内覧ください。掲載情報について
※随時更新を心がけておりますが、掲載している物件が万が一成約している場合もございますので予めご了承下さいませ。
※駐車場・駐輪場・バイク置場の空き状況についてはお問い合わせ下さい。
※ペット飼育やSOHO利用・楽器使用の可否に関しては、建物の管理規約で可能になっていても、お部屋の所有者様によって禁止の場合もございますので御注意下さい。
詳細はメールやお電話にてスタッフまでご相談下さい。スイートパーク小石川の周辺地図
似た条件の物件
最近見た物件






























