クレグラン駒込 ~ペットと住める高級賃貸マンション~
♥お気に入りクレグラン駒込 ~ペットと住める高級賃貸マンション~
♥お気に入り










クレグラン駒込 8階
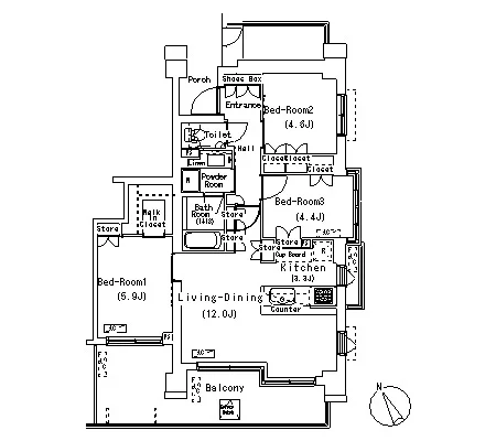
賃料 要問合せ(※) 管理費 敷金 2ヶ月 ペット飼育の場合+1ヶ月 礼金 0ヶ月 キャンペーン中 間取り 3LDK 面積 69.08㎡ 階数 8階 状態 要問合せ(※) 入居 即可 更新料 新賃料の1ヶ月分 諸費用 取引態様 媒介 設備 24時間受付管理、オートロック、駐車場有、駐輪場有、宅配BOX、コンビニ近、BS・CS、CATV、光ファイバー、インターネット対応、防犯カメラ、TVモニター付インターホン、分譲賃貸、礼金なし、ペット可、エレベーター、2階以上、最上階、眺望良好、南向き、二面採光、日当たり良好、コンロ二口以上、ガスキッチン、システムキッチン、エアコン、フローリング、独立洗面台、追い焚き機能、浴室乾燥、ウォシュレット、24時間換気システム、バストイレ別、室内洗濯機置場、床暖房、収納、角部屋、フリーレント付き、2人入居可、楽器相談可、法人契約相談可 物件概要
物件名 クレグラン駒込 所在地 東京都豊島区駒込4-8-12 最寄駅 JR山手線 巣鴨駅 徒歩5分
JR山手線 駒込駅 徒歩7分
都営三田線 巣鴨駅 徒歩5分
学区 構造 RC 階数 地上7階建て 築年月 2007年03月 駐車場 有、36,750円/月(要確認) 備考 ペットと住める高級賃貸マンション【クレグラン駒込】3LDKのお部屋のご紹介ページです。ペット飼育相談可能(小型犬、猫1匹) ※写真は同マンション他タイプのものになります。 詳細閲覧ありがとうございます。最新の空室の確認、内覧のご予約はメール・電話にてお問い合わせください。 文京区の賃貸マンション・賃貸アパートはベステックスにおまかせください! 問合番号 1118 更新日 2011/11/13 このお部屋について
ペットと住める高級賃貸マンション【クレグラン駒込】の8階3LDKのお部屋のご紹介です。只今、礼金0のキャンペーン中です。是非、お早めにお問い合わせください。掲載情報について
※随時更新を心がけておりますが、掲載している物件が万が一成約している場合もございますので予めご了承下さいませ。
※駐車場・駐輪場・バイク置場の空き状況についてはお問い合わせ下さい。
※ペット飼育やSOHO利用・楽器使用の可否に関しては、建物の管理規約で可能になっていても、お部屋の所有者様によって禁止の場合もございますので御注意下さい。
詳細はメールやお電話にてスタッフまでご相談下さい。クレグラン駒込の周辺地図
似た条件の物件
最近見た物件










