スカイコート本郷東大前弐番館 【分譲賃貸マンション♪】
♥お気に入りスカイコート本郷東大前弐番館 【分譲賃貸マンション♪】
♥お気に入り

キッチン

キッチン

居室

居室

居室

収納

セキュリティ

室内洗濯機置き場

浴室

トイレ

玄関

シューズボックス

スカイコート本郷東大前弐番館 6階
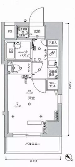
賃料 要問合せ(※) 管理費 敷金 1ヶ月 礼金 1ヶ月 間取り 1K 面積 20.02㎡ 階数 6階 状態 要問合せ(※) 入居 相談 更新料 新賃料の1.5ヶ月相当額 諸費用 取引態様 媒介 設備 オートロック、法人契約相談可、駐輪場有、宅配BOX、コンビニ近、BS・CS、CATV、光ファイバー、インターネット対応、専用ゴミ置場、防犯カメラ、TVモニター付インターホン、分譲賃貸、東京大学徒歩圏、東京大学自転車圏、エレベーター、湯島小学校エリア、2階以上、眺望良好、二面採光、日当たり良好、コンロ二口以上、ガスキッチン、システムキッチン、エアコン、フローリング、浴室乾燥、ウォシュレット、バストイレ別、室内洗濯機置場、収納、角部屋、礼金1以下、保証会社利用
物件概要
物件名 スカイコート本郷東大前弐番館 所在地 東京都文京区本郷3-15-3 最寄駅 東京メトロ丸ノ内線 本郷三丁目駅 徒歩4分
都営大江戸線 本郷三丁目駅 徒歩5分
JR中央線(快速) 御茶ノ水駅 徒歩8分
学区 湯島小学校 構造 SRC 階数 地上13階建て 築年月 2011年10月 駐車場 無 備考 ◆24時間安心サポート 16,500円 ◆鍵交換代 29,700円 ◆消火剤 5,500円 ◆火災保険 18,000円 ◆保証会社利用必須:エポスカード 〔初回保証委託料〕総賃料×50%〔月々〕総賃料×1.4% ◆ 詳細閲覧ありがとうございます。最新の空室の確認、内覧のご予約はメール・電話にてお問い合わせください。 文京区の賃貸マンション・賃貸アパートはベステックスにおまかせください! 問合番号 703-601 更新日 2024/05/17 このお部屋について
【スカイコート本郷東大前弐番館】6階部分、20.02㎡、1Kのご紹介です!
~ここがポイント♪~
①人気の本郷三丁目エリア☆彡 丸の内線「本郷三丁目駅」から徒歩4分!
②分譲タイプのマンションで室内設備が充実しております!
③オートロック、モニター付きインターフォン完備でセキュリティ良好です♪
ぜひお気軽にお問い合わせくださいませ♪
※同建物内の別部屋のお部屋の写真です。掲載情報について
※随時更新を心がけておりますが、掲載している物件が万が一成約している場合もございますので予めご了承下さいませ。
※駐車場・駐輪場・バイク置場の空き状況についてはお問い合わせ下さい。
※ペット飼育やSOHO利用・楽器使用の可否に関しては、建物の管理規約で可能になっていても、お部屋の所有者様によって禁止の場合もございますので御注意下さい。
詳細はメールやお電話にてスタッフまでご相談下さい。スカイコート本郷東大前弐番館の周辺地図
似た条件の物件
最近見た物件




















6駅9路線徒歩圏内となっており、都心へのアクセスが良好です!
治安の良い人気の本郷エリア!スーパー、コンビニ、薬局、飲食店など、お近くに必要なお買い物施設が整っているので、学生さんや単身社会人がとても多いエリアでニーズも高めです♪
建物は2011年9月築、鉄筋コンクリート造地上13階建て。
共用部分にはオートロック、宅配ボックス完備でセキュリティ良好!室内にもTVモニター付きインターホンを完備しており、誰が来たのか一目でわかるので、安心してお住いいただます。
お部屋はクローゼットを完備しており、荷物で余計なスペースを取られず、お部屋を広く使うことができます!
床はフローリング仕様でお掃除が簡単です♪冷暖房付きで快適に生活することができます。
気になる水周りは、キッチンにはグリル付2口ガスコンロのシステムキッチンが備え付けらております。料理が好きな人にも、これから料理に挑戦したいという人にもオススメ♪
バス・トイレは独立しており、それぞれがゆったりと使えるようになっています。
あると嬉しい洗浄暖房便座付き!
浴室乾燥機があるので、雨の日の洗濯や普段仕事で忙しい人にオススメですし、室内洗濯機置き場が付いているので、洗濯機と洗濯物を雨ざらしにすることもなく、洗濯後に直ぐ浴室で干すことも可能です!
水周りは、人気の設備が充実したお部屋となっています♪
充実設備の分譲賃貸マンション。
お気軽にお問い合わせくださいませ♪