GENOVIA新大塚(ジェノヴィア新大塚)
♥お気に入りGENOVIA新大塚(ジェノヴィア新大塚)
♥お気に入り










GENOVIA新大塚(ジェノヴィア新大塚) 1階
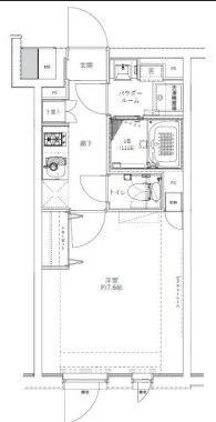
賃料 要問合せ(※) 管理費 敷金 0ヶ月 退去時クリーニング費用精算 礼金 0ヶ月 間取り 1K 面積 25.50㎡ 階数 1階 状態 要問合せ(※) 入居 相談 更新料 新賃料1ヵ月分 諸費用 取引態様 媒介 設備 オートロック、法人契約相談可、駐車場有、駐輪場有、宅配BOX、低層マンション、コンビニ近、光ファイバー、専用ゴミ置場、防犯カメラ、TVモニター付インターホン、礼金なし、ペット可、エレベーター、大塚小学校エリア、1階、コンロ二口以上、ガスキッチン、システムキッチン、エアコン、フローリング、独立洗面台、追い焚き機能、浴室乾燥、ウォシュレット、24時間換気システム、バストイレ別、室内洗濯機置場、洗濯機置場あり、収納、角部屋、礼金1以下、敷金なし、2人入居可、保証会社利用
物件概要
物件名 GENOVIA新大塚(ジェノヴィア新大塚) 所在地 東京都文京区大塚4丁目10-2 最寄駅 東京メトロ丸ノ内線 新大塚駅 徒歩9分
東京メトロ丸ノ内線 茗荷谷駅 徒歩10分
東京メトロ有楽町線 護国寺駅 徒歩12分
学区 大塚小学校 構造 RC 階数 地上4階建て 築年月 2021年02月 駐車場 有り(空き要確認) 備考 ◇初回保証料:総賃料40%~、 ◇保険:2700円/月(24時間サポート含む) ◇鍵交換費用:27500円 ◇ハウスクリーニング:38500円(退去時) ◇短期違約金有 ◇解約予告:2カ月前 ◇ペット飼育時:敷金1ヶ月積み増し ◇インターネット無料(要確認) 詳細閲覧ありがとうございます。最新の空室の確認、内覧のご予約はメール・電話にてお問い合わせください。 文京区の賃貸マンション・賃貸アパートはベステックスにおまかせください! 問合番号 20230923-102 更新日 2024/02/28 このお部屋について
GENOVIA新大塚(ジェノヴィア新大塚)、1階部分、25.5㎡、1Kタイプのご紹介です♪
★オススメポイント★
①2口ガスコンロ、延長台付きのシンク。
②独立洗面台等人気設備完備!
③オシャレな照明完備◎
※写真は別部屋です。掲載情報について
※随時更新を心がけておりますが、掲載している物件が万が一成約している場合もございますので予めご了承下さいませ。
※駐車場・駐輪場・バイク置場の空き状況についてはお問い合わせ下さい。
※ペット飼育やSOHO利用・楽器使用の可否に関しては、建物の管理規約で可能になっていても、お部屋の所有者様によって禁止の場合もございますので御注意下さい。
詳細はメールやお電話にてスタッフまでご相談下さい。GENOVIA新大塚(ジェノヴィア新大塚)の周辺地図
似た条件の物件
最近見た物件
















2口ガスコンロもあり、シンクには延長台も付いているので自炊される方も便利さに、料理をするのが楽しくなるような物件になっております。キッチン回りの収納スペースもたっぷり用意されているので、調理道具を買ってしまってもしっかり収納できます。
浴室乾燥機のお風呂も付いているので、洗濯物も外に干す必要もありませんし、カビ対策にも便利です。スペースもたっぷり確保されているので、日頃の疲れを癒すには十分なスペースが確保されています。
インターネット使用無料の物件になっておりますので自分で契約する手間も必要ありません。