プラウドフラット根津谷中 ~谷根千エリアの築浅物件~
♥お気に入りプラウドフラット根津谷中 ~谷根千エリアの築浅物件~
♥お気に入り










プラウドフラット根津谷中 1階
賃料 要問合せ(※) 管理費 敷金 1ヶ月 礼金 1ヶ月 間取り 1K 面積 25.33㎡ 階数 1階 状態 要問合せ(※) 入居 相談 更新料 1.0ヶ月 諸費用 取引態様 媒介 設備 オートロック、バイク置場有、法人契約相談可、駐車場有、駐輪場有、宅配BOX、コンビニ近、BS・CS、光ファイバー、インターネット対応、専用ゴミ置場、防犯カメラ、TVモニター付インターホン、東京大学徒歩圏、東京大学自転車圏、ペット可、エレベーター、1階、南向き、日当たり良好、コンロ二口以上、ガスキッチン、システムキッチン、エアコン、フローリング、独立洗面台、追い焚き機能、浴室乾燥、ウォシュレット、バストイレ別、室内洗濯機置場、洗濯機置場あり、収納、角部屋、礼金1以下、2人入居可、保証会社利用
物件概要
物件名 プラウドフラット根津谷中 所在地 東京都台東区谷中1-1-26 最寄駅 東京メトロ千代田線 根津駅 徒歩6分
JR山手線 鶯谷駅 徒歩13分
学区 構造 RC 階数 地上8階建て 築年月 2020年08月 駐車場 有 駐車場:4万円(税別) 駐輪場:300円(税別) バイク置場:3,000円(税別) 備考 ◇保証会社加入義務:必加入 ◇会社:SBIギャランティ 【利用料:初期費用:賃料総額の40% / 次年度以降年間保証料10,000円 詳細:個人・法人 利用可能 / 最低保証料20,000円 東京海上ミレア少額短期保険:17,000円(2年契約)】 ◇会社:クレディセゾン 【利用料:初期費用:賃料総額の20% / 次年度以降年間保証料10,000円 詳細:個人・法人 利用可能 / 最低保証料15,000円 【学生】初期費用:13,000円 / 次年度以降年間保証料10,000円 / 最低保証料13,000円 ※学生証提出 満18歳以上 e-NET少額短期保険:17,000円(2年契約)】 ◇会社:エポスカード 【利用料:【ベーシック】初期費用:賃料総額の20% / 月額保証料:賃料総額×1% 詳細:「法人」利用できません / 最低保証料:15,000円 【キャンパス】初期費用:15,000円 / 月額保証料:賃料総額×1% ※学生証提出 【GTN】初回保証料:賃料総額の50% / 月額保証料:2,000円 ※外国籍・留学生 エポス少額短期保険:17,000円(2年契約)】 ◇会社:オリコフォレントインシュア 【利用料:初期費用:賃料総額の20% / 年間継続保証料:10,000円 詳細:個人・法人 利用可能 / 最低保証料20,000円 【学生用】初回保証料:15,000円 / 年間継続保証料:10,000円 / 最低保証料15,000円 ※学生証提出 東京海上ミレア少額短期保険:17,000円(2年契約)】 ◇楽器不可 / 事務所不可 / 二人入居可 / ペット可能 / ルームシェア相談 ◇バイク置場空有:3,000円(税別) ◇駐車場空有:4万円(税別) ◇駐輪場空有:300円(税別) ◇無料インターネット付き(UCOM光) ◇NURO光forマンション導入済※別途要有償契約 ◇ペット(小型犬or猫1匹迄)飼育可能。(※飼育時は敷金1ヶ月プラス) ◇鍵交換代:3万3,000円 ◇火災保険加入必須 ◇ 詳細閲覧ありがとうございます。最新の空室の確認、内覧のご予約はメール・電話にてお問い合わせください。 文京区の賃貸マンション・賃貸アパートはベステックスにおまかせください! 問合番号 511-102 更新日 2023/12/09 このお部屋について
台東区谷中1丁目の新築マンション『プラウドフラット根津谷中』
人気の谷根千エリア♪
~オススメポイント~
①ペット飼育可能!
②バス・トイレ別で独立洗面台完備!
③1階ですが、敷地内にバルコニー有!
是非一度ご覧ください!掲載情報について
※随時更新を心がけておりますが、掲載している物件が万が一成約している場合もございますので予めご了承下さいませ。
※駐車場・駐輪場・バイク置場の空き状況についてはお問い合わせ下さい。
※ペット飼育やSOHO利用・楽器使用の可否に関しては、建物の管理規約で可能になっていても、お部屋の所有者様によって禁止の場合もございますので御注意下さい。
詳細はメールやお電話にてスタッフまでご相談下さい。プラウドフラット根津谷中の周辺地図
似た条件の物件
最近見た物件

















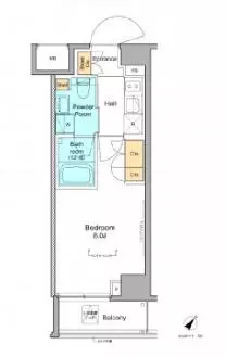
1階部分ですが、バルコニーが敷地内のあるのでセキュリティー面でも安心してご入居できます。
玄関先の廊下には、2口ガスコンロのキッチンがございます。収納スペースも確保されており、キッチン横に冷蔵庫・電子レンジがおけるので効率的にお料理を進める事ができます。また、居室部分とキッチン部分は、扉で仕切られているのでお料理の匂いが気になりません。
人気条件のバス・トイレ別でトイレには、ウォシュレット機能が完備されております。
水周りは、お風呂・洗濯機置き場・独立洗面台・トイレがまとまった洋風チックな造りとなっております。洗濯機がお風呂近くにおけるので脱衣所としても利用できます。
人気の独立洗面台もあるので、朝の準備も捗ります。