文京グリーンコートビュータワー本駒込
♥お気に入り文京グリーンコートビュータワー本駒込
♥お気に入り

リビング

リビング

リビング

リビング

収納

インターフォン

キッチン

冷蔵庫置場

コンロ

文京グリーンコートビュータワー本駒込 14階
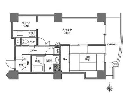
賃料 要問合せ(※) 管理費 敷金 1ヶ月 礼金 1ヶ月 間取り 1LDK 面積 56.56㎡ 階数 14階 状態 要問合せ(※) 入居 相談 更新料 新賃料の1ヶ月分 諸費用 取引態様 媒介 設備 タワーマンション、オートロック、バイク置場有、法人契約相談可、駐車場有、駐輪場有、宅配BOX、コンビニ近、BS・CS、CATV、光ファイバー、インターネット対応、専用ゴミ置場、防犯カメラ、TVモニター付インターホン、エレベーター、昭和小学校エリア、2階以上、眺望良好、日当たり良好、コンロ二口以上、ガスキッチン、システムキッチン、エアコン、フローリング、独立洗面台、追い焚き機能、浴室乾燥、トランクルーム、バストイレ別、室内洗濯機置場、収納、礼金1以下、保証会社利用 物件概要
物件名 文京グリーンコートビュータワー本駒込 所在地 東京都文京区本駒込2-28-1 最寄駅 都営三田線 千石駅 徒歩4分
東京メトロ南北線 駒込駅 徒歩11分
JR山手線 駒込駅 徒歩13分
学区 昭和小学校 構造 RC 階数 地上22階建て 地下1階 築年月 1998年01月 駐車場 有(要確認) 備考 ◆[保証会社]加入要 ◆レジデンシャルパートナーズ 保証料:賃料等の40%(最低2万)、月額手数料:賃料等の1%(更新料無) ◆[口座振替事務手数料]110円 ◆[セーフティ補償料]640円 ◆[鍵交換代]27,500円 ◆[更新料]1ヶ月 ◆清掃費:59840円 ◆エアコン清掃費:22000円 ■インターネット接続有(フレッツ光別途個別契約) ■敷地内駐車場別管理 ■駐輪場各世帯1台まで(無料) ■解約予告2ヶ月前 ■トランクルーム付 ■スカパープレミアム光 ■ペット飼育不可・楽器利用不可 ◆ 詳細閲覧ありがとうございます。最新の空室の確認、内覧のご予約はメール・電話にてお問い合わせください。 文京区の賃貸マンション・賃貸アパートはベステックスにおまかせください! 問合番号 642000-1403 更新日 2023/11/19 このお部屋について
文京区本駒込2丁目の『文京グリーンコートビュータワー本駒込』のご紹介です!
14階部分、56.77㎡の1LDKのお部屋です!
~おすすめポイント~
①防犯カメラやTVモニター付きインターホンの安心セキリュティ♪
②2口ガスコンロのシステムキッチン♪
③独立洗面台・追い炊き機能・浴室乾燥機を完備!!
是非お問い合わせください♪
※写真は別のお部屋の写真となります。掲載情報について
※随時更新を心がけておりますが、掲載している物件が万が一成約している場合もございますので予めご了承下さいませ。
※駐車場・駐輪場・バイク置場の空き状況についてはお問い合わせ下さい。
※ペット飼育やSOHO利用・楽器使用の可否に関しては、建物の管理規約で可能になっていても、お部屋の所有者様によって禁止の場合もございますので御注意下さい。
詳細はメールやお電話にてスタッフまでご相談下さい。文京グリーンコートビュータワー本駒込の周辺地図
似た条件の物件
最近見た物件















