プラウドフラット文京千駄木
♥お気に入りプラウドフラット文京千駄木
♥お気に入り
















プラウドフラット文京千駄木 10階
賃料 要問合せ(※) 管理費 敷金 1ヶ月 ペット飼育時1ヶ月積増 礼金 0ヶ月 間取り 1LDK 面積 40.40㎡ 階数 10階 状態 要問合せ(※) 入居 相談 更新料 新賃料1ヶ月分 諸費用 取引態様 媒介 設備 オートロック、バイク置場有、法人契約相談可、駐車場有、駐輪場有、宅配BOX、コンビニ近、BS・CS、インターネット対応、TVモニター付インターホン、東京大学自転車圏、礼金なし、ペット可、エレベーター、千駄木小学校エリア、2階以上、眺望良好、二面採光、コンロ二口以上、ガスキッチン、システムキッチン、ウォークインクローゼット、エアコン、フローリング、独立洗面台、追い焚き機能、浴室乾燥、ウォシュレット、24時間換気システム、バストイレ別、室内洗濯機置場、洗濯機置場あり、収納、礼金1以下、保証会社利用
物件概要
物件名 プラウドフラット文京千駄木 所在地 東京都文京区千駄木4-14-1 最寄駅 JR山手線 田端駅 徒歩10分
JR山手線 西日暮里駅 徒歩10分
東京メトロ南北線 本駒込駅 徒歩13分
学区 千駄木小学校 構造 RC 階数 地上15階建て 築年月 2023年02月 駐車場 平置き4台 月額44,000円 備考 ◇ペット飼育時敷金1ヶ月積増 ◇駐車場:平置き3台 44,000円/月額(要空き確認) ◇バイク置き場:平置き8台 3,300円/月額※ミニバイクのみ ◇自転車置き場:63台 初回登録料有 ◇保証会社:複数プラン有 要確認 ◇火災保険:貸主指定保険加入必須 詳細閲覧ありがとうございます。最新の空室の確認、内覧のご予約はメール・電話にてお問い合わせください。 文京区の賃貸マンション・賃貸アパートはベステックスにおまかせください! 問合番号 20230127-1001 更新日 2024/06/28 このお部屋について
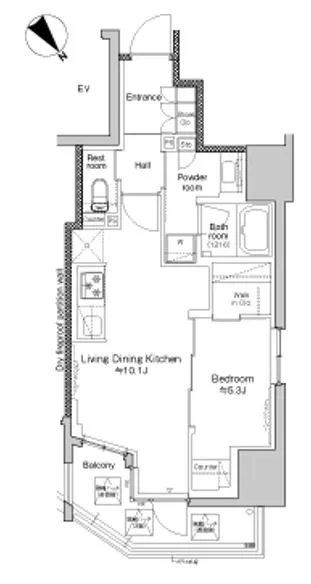
10階、40,40㎡、1LDKのお部屋のご紹介です
~おすすめポイント~
①大きなウォークインクローゼット完備
②寝室大きめで使いやすい!
③引き戸を開ききればリビングと洋室を同一空間として利用可能です!
是非、お問い合わせください!掲載情報について
※随時更新を心がけておりますが、掲載している物件が万が一成約している場合もございますので予めご了承下さいませ。
※駐車場・駐輪場・バイク置場の空き状況についてはお問い合わせ下さい。
※ペット飼育やSOHO利用・楽器使用の可否に関しては、建物の管理規約で可能になっていても、お部屋の所有者様によって禁止の場合もございますので御注意下さい。
詳細はメールやお電話にてスタッフまでご相談下さい。プラウドフラット文京千駄木の周辺地図
似た条件の物件
最近見た物件






















リビングは約10.1帖となっており、キッチンは3口ガスコンロで調理スペース・収納スペースもしっかり完備しており、冷蔵庫・電子レンジもキッチン横に置けるので、効率的にお料理を進める事ができます。
居室は約5.3帖となっており、ウォークインクローゼットも奥行きもありパイプスペースもあるので、整理整頓も楽に行えます。居室にはデスクもあるので、リモートワークでも利用できます。
水回り設備もしっかり整っており、独立洗面台周りも広くなっており朝の準備もしやすくなっております。追い焚き・浴室乾燥機付きのお風呂となっており機能面でも充実です。
トイレは、水回りから完全セパレートのウォシュレット機能付きとなっており、二人入居でも使いやすい仕様となっております。
玄関先も広く入室もしやすくなっております。
ペット飼育可能も可能となっております。