ザ・パークハビオ小石川
♥お気に入りザ・パークハビオ小石川
♥お気に入り


















ザ・パークハビオ小石川 5階
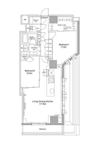
賃料 要問合せ(※) 管理費 敷金 1ヶ月 礼金 1ヶ月 間取り 2LDK 面積 70.47㎡ 階数 5階 状態 要問合せ(※) 入居 相談 更新料 諸費用 取引態様 媒介 設備 オートロック、バイク置場有、法人契約相談可、駐輪場有、宅配BOX、コンビニ近、インターネット対応、専用ゴミ置場、防犯カメラ、TVモニター付インターホン、東京大学自転車圏、ペット可、エレベーター、礫川小学校エリア、2階以上、コンロ二口以上、ガスキッチン、システムキッチン、ウォークインクローゼット、エアコン、フローリング、独立洗面台、追い焚き機能、浴室乾燥、ウォシュレット、24時間換気システム、バストイレ別、室内洗濯機置場、収納、角部屋、フリーレント付き、2人入居可、保証会社利用、楽器相談可、SOHO可 物件概要
物件名 ザ・パークハビオ小石川 所在地 東京都文京区小石川3-25-6 最寄駅 東京メトロ南北線 後楽園駅 徒歩8分
東京メトロ丸ノ内線 後楽園駅 徒歩8分
都営三田線 春日駅 徒歩8分
学区 礫川小学校 構造 RC 階数 地上7階建て 築年月 2021年12月 駐車場 無(駐輪場・バイク置場有) 備考 ◇保証会社利用必須 ・初回保証料:総賃料の50% ・2年目以降:1万円 ◇火災保険加入必須 ◇ペット相談可(小型犬・猫計2匹まで/敷金1ヶ月積み増し) ◇楽器相談可:(10~20時/連続演奏1時間以内/消音機能付きに限る) ◇SOHO相談可:敷金1ヶ月積み増し(登記・不特定多数来訪業種・営業看板設置何れも不可) ◇LGBTフレンドリー ◇民泊不可 ◇解約予告2カ月前 ◇退去時クリーニング費用借主負担 ◇ 詳細閲覧ありがとうございます。最新の空室の確認、内覧のご予約はメール・電話にてお問い合わせください。 文京区の賃貸マンション・賃貸アパートはベステックスにおまかせください! 問合番号 202112131-501 更新日 2023/06/05 このお部屋について
5階部分、70.47㎡の2LDKのご紹介です。
~オススメポイント~
①70㎡越えの広々2LDK
②大型ウォークインクローゼット
③3口コンロカウンターキッチン掲載情報について
※随時更新を心がけておりますが、掲載している物件が万が一成約している場合もございますので予めご了承下さいませ。
※駐車場・駐輪場・バイク置場の空き状況についてはお問い合わせ下さい。
※ペット飼育やSOHO利用・楽器使用の可否に関しては、建物の管理規約で可能になっていても、お部屋の所有者様によって禁止の場合もございますので御注意下さい。
詳細はメールやお電話にてスタッフまでご相談下さい。ザ・パークハビオ小石川の周辺地図
似た条件の物件
最近見た物件





















