PREMIUM CUBE G 後楽園
♥お気に入りPREMIUM CUBE G 後楽園
♥お気に入り
【築浅】PREMIUM CUBE G 後楽園 15階
| 賃料 | 要問合せ(※) | 管理費 | |
|---|---|---|---|
| 敷金 | 1ヶ月 | 礼金 | 1ヶ月 |
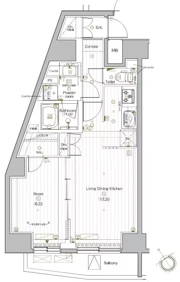
| 間取り | 1LDK | 面積 | 47.04㎡ |
| 階数 | 15階 | 状態 | 要問合せ(※) |
| 入居 | 相談 | 更新料 | 新賃料の1.5ヶ月+更新事務手数料22,000円 |
| 諸費用 | 取引態様 | 媒介 | |
| 設備 | 新築、タワーマンション、デザイナーズ、オートロック、バイク置場有、法人契約相談可、駐輪場有、宅配BOX、BS・CS、インターネット対応、防犯カメラ、TVモニター付インターホン、ペット可、金富小学校エリア、最上階、ガスキッチン、システムキッチン、エアコン、独立洗面台、24時間換気システム、バストイレ別、保証会社利用 | ||
物件概要
| 物件名 | 【築浅】PREMIUM CUBE G 後楽園 | ||
|---|---|---|---|
| 所在地 | 東京都文京区小石川4-1-17 | ||
| 最寄駅 |
東京メトロ南北線 後楽園駅 徒歩11分 都営三田線 春日駅 徒歩11分 東京メトロ丸ノ内線 茗荷谷駅 徒歩12分 |
||
| 学区 | 金富小学校 | 構造 | RC |
| 階数 | 地上15階建て | 築年月 | 2023年02月 |
| 駐車場 | |||
| 備考 | ◇保証会社利用必須 複数プラン有 要確認 ◇火災保険(2年)・2K:23,000円・1LDK:25,000円 ◇鍵交換費用 ・2K:22,000円・1LDK:25,300円 ◇室内抗菌処理代:16,500円 ◇契約事務手数料:11,000円 ◇ペット飼育時・1匹:共益費+3,500円追加 2匹:共益費+3,500円追加及び敷金1ヶ月積増(償却)※犬・猫いずれか2匹まで 詳細閲覧ありがとうございます。最新の空室の確認、内覧のご予約はメール・電話にてお問い合わせください。 文京区の賃貸マンション・賃貸アパートはベステックスにおまかせください! | ||
| 問合番号 | 20230123-1502 | ||
| 更新日 | 2023/01/27 | ||
このお部屋について
15階、47.04㎡、1LDKのお部屋のご紹介です!
~おすすめポイント~
①最上階、南西向きで日当たり良好!
②カップルにおすすめ1LDKタイプのお部屋!
③3口コンロでお料理快適!
是非、お問い合わせください
~おすすめポイント~
①最上階、南西向きで日当たり良好!
②カップルにおすすめ1LDKタイプのお部屋!
③3口コンロでお料理快適!
是非、お問い合わせください
掲載情報について
※随時更新を心がけておりますが、掲載している物件が万が一成約している場合もございますので予めご了承下さいませ。
※駐車場・駐輪場・バイク置場の空き状況についてはお問い合わせ下さい。
※ペット飼育やSOHO利用・楽器使用の可否に関しては、建物の管理規約で可能になっていても、お部屋の所有者様によって禁止の場合もございますので御注意下さい。
詳細はメールやお電話にてスタッフまでご相談下さい。
※駐車場・駐輪場・バイク置場の空き状況についてはお問い合わせ下さい。
※ペット飼育やSOHO利用・楽器使用の可否に関しては、建物の管理規約で可能になっていても、お部屋の所有者様によって禁止の場合もございますので御注意下さい。
詳細はメールやお電話にてスタッフまでご相談下さい。

