パレステュディオ文京音羽
♥お気に入りパレステュディオ文京音羽
♥お気に入り










パレステュディオ文京音羽 10階
賃料 要問合せ(※) 管理費 敷金 0ヶ月 礼金 1ヶ月 間取り 1K 面積 21.14㎡ 階数 10階 状態 要問合せ(※) 入居 相談 更新料 新賃料の1ヵ月分 諸費用 取引態様 媒介 設備 オートロック、法人契約相談可、駐輪場有、宅配BOX、コンビニ近、光ファイバー、インターネット対応、防犯カメラ、TVモニター付インターホン、東京大学自転車圏、ペット可、関口台町小学校エリア、2階以上、二面採光、コンロ二口以上、ガスキッチン、システムキッチン、エアコン、フローリング、浴室乾燥、ウォシュレット、バストイレ別、室内洗濯機置場、収納、角部屋、礼金1以下、保証会社利用 物件概要
物件名 パレステュディオ文京音羽 所在地 東京都文京区音羽1丁目27-9 最寄駅 東京メトロ有楽町線 江戸川橋駅 徒歩3分
東京メトロ有楽町線 護国寺駅 徒歩9分
東京メトロ東西線 神楽坂駅 徒歩10分
学区 関口台町小学校 構造 RC 階数 地上10階建て 築年月 2002年08月 駐車場 備考 詳細閲覧ありがとうございます。最新の空室の確認、内覧のご予約はメール・電話にてお問い合わせください。 文京区の賃貸マンション・賃貸アパートはベステックスにおまかせください! 問合番号 20221021-1003 更新日 2022/10/21 このお部屋について
鉄筋コンクリート造地上10階建て10階お部屋のご紹介!ペット飼育相談可能!
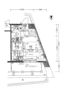
使いやすく機能的な1Kタイプのお部屋は、21.14㎡の広さが御座います♪
約6.0帖の居室は、アウトフレーム工法で使いやすい間取りとなっております。
お部屋にはクローゼットも完備しておりますので荷物で、余計なスペースを取られることは御座いませんので、お部屋を広くお使い頂けます♪
~気になる水周り~
キッチンにはグリル付2口ガスコンロが備え付けられた
システムキッチンを採用しているので、料理が好きな人にオススメです♪
バス・トイレが独立設計でそれぞれを圧迫感なくゆったりと使うことができます!
浴室には浴室乾燥機があるので、浴室を清潔に保つことも出来ますし、雨の日の洗濯や普段仕事で忙しく夜に洗濯する人にも嬉しい設備です♪
さらに有ってうれしい温水洗浄便座などの人気の水周り設備が充実!
~セキュリティ~
もちろんオートロック完備!
さらにオートロックはTVモニター付きになっているので、
誰が尋ねてきたのか一目で分かります!
※写真は同マンション別部屋のものです。
是非ご覧ください!掲載情報について
※随時更新を心がけておりますが、掲載している物件が万が一成約している場合もございますので予めご了承下さいませ。
※駐車場・駐輪場・バイク置場の空き状況についてはお問い合わせ下さい。
※ペット飼育やSOHO利用・楽器使用の可否に関しては、建物の管理規約で可能になっていても、お部屋の所有者様によって禁止の場合もございますので御注意下さい。
詳細はメールやお電話にてスタッフまでご相談下さい。パレステュディオ文京音羽の周辺地図
似た条件の物件
最近見た物件
















