スタッフのコメント
関 泰生
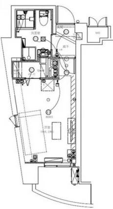
2024年6月末にリノベーション完工!人気の独立洗面台を設置しバスタブをなくしシャワールームにしました。角部屋で二面採光♪居室部分は8.0帖の広さが御座います。家具の配置がしやすい間取りで人気のフローリング!居室には、ウォークインクローゼットがあり、横幅・奥行き・高さ申し分なしの広さとなっており収納面も安心できます♪洗濯機置き場はシャワールームの前に御座います。衣服を脱いで、そのままシャワールームに行けるという効率の良い造りになっております!是非、お問い合わせをお待ちしております!


























