セジョリ駒込
♥お気に入りセジョリ駒込
♥お気に入り
セジョリ駒込 5階
| 賃料 | 要問合せ(※) | 管理費 | |
|---|---|---|---|
| 敷金 | 0ヶ月 | 礼金 | 0ヶ月 |
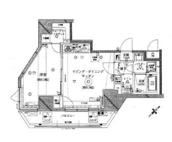
| 間取り | 1LDK | 面積 | 40.55㎡ |
| 階数 | 5階 | 状態 | 要問合せ(※) |
| 入居 | 相談 | 更新料 | 新賃料の1か月分更新事務手数料5000円税別 |
| 諸費用 | 取引態様 | 媒介 | |
| 設備 | デザイナーズ、オートロック、バイク置場有、法人契約相談可、駐輪場有、宅配BOX、BS・CS、CATV、光ファイバー、インターネット対応、専用ゴミ置場、防犯カメラ、TVモニター付インターホン、分譲賃貸、東京大学自転車圏、礼金なし、エレベーター、昭和小学校エリア、2階以上、二面採光、コンロ二口以上、ガスキッチン、システムキッチン、ウォークインクローゼット、エアコン、フローリング、独立洗面台、追い焚き機能、浴室乾燥、ウォシュレット、バストイレ別、室内洗濯機置場、収納、角部屋、敷金なし、ルームシェア可、2人入居可 | ||
物件概要
| 物件名 | セジョリ駒込 | ||
|---|---|---|---|
| 所在地 | 東京都文京区本駒込5-70-10 | ||
| 最寄駅 |
JR山手線 駒込駅 徒歩7分 都営三田線 千石駅 徒歩12分 東京メトロ南北線 本駒込駅 徒歩13分 |
||
| 学区 | 昭和小学校 | 構造 | RC |
| 階数 | 地上12階建て | 築年月 | 2013年05月 |
| 駐車場 | |||
| 備考 | 詳細閲覧ありがとうございます。最新の空室の確認、内覧のご予約はメール・電話にてお問い合わせください。 文京区の賃貸マンション・賃貸アパートはベステックスにおまかせください! | ||
| 問合番号 | 20220811-501 | ||
| 更新日 | 2022/08/11 | ||
このお部屋について
ペット飼育可能!(小型犬・猫1匹のみ)の分譲賃貸マンション【セジョリ駒込】のご紹介です!12階建ての5階部分!
シンプルで使い勝手良好な1LDKタイプのお部屋のご紹介です!
居室は約6.2帖の洋室で、複数面に窓を完備することにより明るさと開放感を得られる造り♪収納はウォークインクローゼットが御座いますので荷物が多い方でも安心!たっぷり収納可能です!
リビングダイニングキッチンは約9.5帖の広さが有り、大きな窓とバルコニー、収納スペース完備で生活がし易いよう工夫されております。キッチンにはガスコンロが2口付き。
キッチンは調理スペースが十分確保されており、食器類や調理器具を入れるスペースも問題無し!
水周りは、浴室・トイレ・洗面台がそれぞれ独立しており、浴室には乾燥機能が御座いますので雨の日でも気軽に洗濯が可能、トイレには温水洗浄便座などあると便利な人気設備が揃っております。
充実設備の分譲マンション【セジョリ駒込】ぜひ一度ご覧ください!!
シンプルで使い勝手良好な1LDKタイプのお部屋のご紹介です!
居室は約6.2帖の洋室で、複数面に窓を完備することにより明るさと開放感を得られる造り♪収納はウォークインクローゼットが御座いますので荷物が多い方でも安心!たっぷり収納可能です!
リビングダイニングキッチンは約9.5帖の広さが有り、大きな窓とバルコニー、収納スペース完備で生活がし易いよう工夫されております。キッチンにはガスコンロが2口付き。
キッチンは調理スペースが十分確保されており、食器類や調理器具を入れるスペースも問題無し!
水周りは、浴室・トイレ・洗面台がそれぞれ独立しており、浴室には乾燥機能が御座いますので雨の日でも気軽に洗濯が可能、トイレには温水洗浄便座などあると便利な人気設備が揃っております。
充実設備の分譲マンション【セジョリ駒込】ぜひ一度ご覧ください!!
掲載情報について
※随時更新を心がけておりますが、掲載している物件が万が一成約している場合もございますので予めご了承下さいませ。
※駐車場・駐輪場・バイク置場の空き状況についてはお問い合わせ下さい。
※ペット飼育やSOHO利用・楽器使用の可否に関しては、建物の管理規約で可能になっていても、お部屋の所有者様によって禁止の場合もございますので御注意下さい。
詳細はメールやお電話にてスタッフまでご相談下さい。
※駐車場・駐輪場・バイク置場の空き状況についてはお問い合わせ下さい。
※ペット飼育やSOHO利用・楽器使用の可否に関しては、建物の管理規約で可能になっていても、お部屋の所有者様によって禁止の場合もございますので御注意下さい。
詳細はメールやお電話にてスタッフまでご相談下さい。





