リヴシティ東大前 ~ハイグレード分譲賃貸マンション~
♥お気に入りリヴシティ東大前 ~ハイグレード分譲賃貸マンション~
♥お気に入り










リヴシティ東大前 7階
賃料 要問合せ(※) 管理費 敷金 1ヶ月 礼金 1ヶ月 間取り 1LDK 面積 40.29㎡ 階数 7階 状態 要問合せ(※) 入居 相談 更新料 新賃料の1ヶ月分 諸費用 取引態様 媒介 設備 オートロック、バイク置場有、法人契約相談可、駐輪場有、宅配BOX、BS・CS、インターネット対応、防犯カメラ、TVモニター付インターホン、分譲賃貸、礼金なし、ペット可、エレベーター、誠之小学校エリア、2階以上、コンロ二口以上、システムキッチン、エアコン、フローリング、独立洗面台、浴室乾燥、ウォシュレット、バストイレ別、室内洗濯機置場、収納、角部屋、敷金なし、2人入居可 物件概要
物件名 リヴシティ東大前 所在地 東京都文京区西片2-16₋20 最寄駅 東京メトロ南北線 東大前駅 徒歩5分
都営三田線 白山駅 徒歩8分
東京メトロ南北線 本駒込駅 徒歩14分
学区 誠之小学校 構造 RC 階数 地上8階建て 築年月 2016年07月 駐車場 無 駐輪場・バイク置場有 備考 THETAあり。 詳細閲覧ありがとうございます。最新の空室の確認、内覧のご予約はメール・電話にてお問い合わせください。 文京区の賃貸マンション・賃貸アパートはベステックスにおまかせください! 問合番号 20220630-701 更新日 2022/09/26 このお部屋について
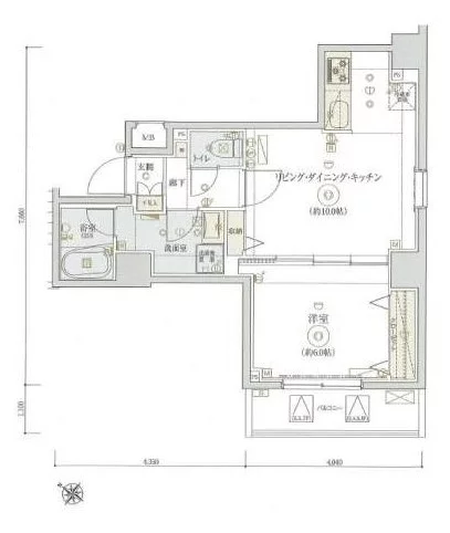
東京都文京区西片2丁目に完成予定の【リブシティ東大前】地上8階建ての7階部分、40.29㎡の1LDKのお部屋のご紹介です。
共有部には、オートロックシステムに加えて防犯カメラも完備されていますので、安心してご入居頂けます。インターネット:光にも対応しております。
約10帖あるLDKは、柱などの角部分が少ないため、食卓などの大きな家具の配置もし易い間取りになっております。
またキッチンには三口ガスコンロが完備されています!
LDKの文字通り、調理の場としても、お食事の場としても、団欒の場としてもご活用いただけるお部屋になっております。
洋室は約6帖。
収納スペースもございますので、荷物に場所を取られる
ことなく、寝具などのレイアウトを考えることができます。
水回りはバス、トイレ、洗面台がそれぞれ独立した造りになっております!浴室には、乾燥機が付いていますので、梅雨や雨の日が続いても洗濯物を貯めることなく乾かすことができます。
洗面台も独立しておりますので、忙しい朝の身支度などもスムーズに行うことができます。
※写真は同タイプ別部屋のものです。
ぜひ一度【リブシティ東大前】をご覧ください!掲載情報について
※随時更新を心がけておりますが、掲載している物件が万が一成約している場合もございますので予めご了承下さいませ。
※駐車場・駐輪場・バイク置場の空き状況についてはお問い合わせ下さい。
※ペット飼育やSOHO利用・楽器使用の可否に関しては、建物の管理規約で可能になっていても、お部屋の所有者様によって禁止の場合もございますので御注意下さい。
詳細はメールやお電話にてスタッフまでご相談下さい。リヴシティ東大前の周辺地図
最近見た物件











