【築浅】コンシェリア後楽園HILLTOP SQUARE
♥お気に入り【築浅】コンシェリア後楽園HILLTOP SQUARE
♥お気に入り










【築浅】コンシェリア後楽園HILLTOP SQUARE 3階
賃料 要問合せ(※) 管理費 敷金 0ヶ月 礼金 0ヶ月 間取り 1K 面積 27.21㎡ 階数 3階 状態 要問合せ(※) 入居 相談 更新料 新賃料の1.5ヵ月分 諸費用 取引態様 媒介 設備 新築、オートロック、バイク置場有、駐輪場有、宅配BOX、BS・CS、インターネット対応、専用ゴミ置場、TVモニター付インターホン、分譲賃貸、東京大学徒歩圏、エレベーター、金富小学校エリア、ルーフバルコニー、ガスキッチン、システムキッチン、エアコン、フローリング、独立洗面台、追い焚き機能、浴室乾燥、ウォシュレット、バストイレ別、室内洗濯機置場、洗濯機置場あり、収納、法人契約相談可 物件概要
このお部屋について
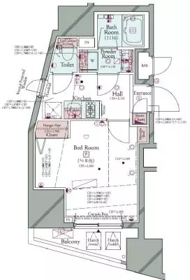
3階、27.21㎡、1Kのお部屋のご紹介です。
~~ここがポイント~~
①2口コンロのカウンターキッチン!
②洋室約8.0帖の広々とした空間!
③人気のバストイレ別!!
気になった方は是非お問い合わせください。掲載情報について
※随時更新を心がけておりますが、掲載している物件が万が一成約している場合もございますので予めご了承下さいませ。
※駐車場・駐輪場・バイク置場の空き状況についてはお問い合わせ下さい。
※ペット飼育やSOHO利用・楽器使用の可否に関しては、建物の管理規約で可能になっていても、お部屋の所有者様によって禁止の場合もございますので御注意下さい。
詳細はメールやお電話にてスタッフまでご相談下さい。【築浅】コンシェリア後楽園HILLTOP SQUAREの周辺地図
似た条件の物件
最近見た物件













_id7219.webp)


