パークアクシス本郷の杜 ~ペット・楽器相談可~
♥お気に入りパークアクシス本郷の杜 ~ペット・楽器相談可~
♥お気に入り
_id4084.webp)
_id4084.webp)
_id4084.webp)
キッチン
_id4084.webp)
独立洗面台
_id4084.webp)
浴室
_id4084.webp)
_id4084.webp)
_id4084.webp)
_id4084.webp)

パークアクシス本郷の杜 9階
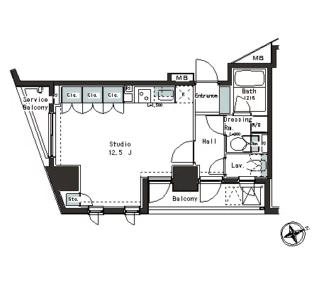
賃料 要問合せ(※) 管理費 敷金 1ヶ月 礼金 1ヶ月 間取り 1R 面積 34.36㎡ 階数 9階 状態 要問合せ(※) 入居 相談 更新料 新賃料の1ヵ月分 諸費用 取引態様 媒介 設備 オートロック、駐輪場有、宅配BOX、コンビニ近、BS・CS、CATV、光ファイバー、インターネット対応、専用ゴミ置場、防犯カメラ、TVモニター付インターホン、分譲賃貸、東京大学徒歩圏、ペット可、エレベーター、湯島小学校エリア、2階以上、眺望良好、二面採光、コンロ二口以上、ガスキッチン、システムキッチン、エアコン、フローリング、独立洗面台、追い焚き機能、浴室乾燥、ウォシュレット、バストイレ別、室内洗濯機置場、収納、角部屋、楽器相談可、法人契約相談可 物件概要
物件名 パークアクシス本郷の杜 所在地 東京都文京区本郷7-2-11 最寄駅 都営大江戸線 本郷三丁目駅 徒歩1分
東京メトロ丸ノ内線 本郷三丁目駅 徒歩3分
学区 湯島小学校 構造 RC 階数 地上14階建て 地下1階 築年月 2005年11月 駐車場 駐車場機械式 奥行き:5300 幅:1900 高さ:1550 2.3t ¥27,000~(H26.5.26) 備考 ペット相談可能(敷金2ヶ月)、ピアノ相談可能(アップライト)、管理人通勤、ディンプルキー、ダブルロック、詳細閲覧ありがとう御座います。内見ご希望の方はメール・電話どちらでも結構ですので御連絡頂ければいつでも対応させて頂きます。 詳細閲覧ありがとうございます。最新の空室の確認、内覧のご予約はメール・電話にてお問い合わせください。 文京区の賃貸マンション・賃貸アパートはベステックスにおまかせください! 問合番号 894 更新日 2021/07/22 このお部屋について
鉄骨鉄筋コンクリート造14階建ての賃貸マンション「パークアクシス本郷の杜」。
9階のお部屋のご紹介です!
間取りは使いやすく機能的な1Rタイプのお部屋です♪
居室はバルコニーに面していますので光の入るお部屋になっています。
また、高層階であるため、眺望も良好!
お部屋は多数の収納を備えておりますので、荷物に邪魔されず家具を自由に配置することが出来るお部屋になっています。
お好みの家具を自由に配置してお部屋作りを楽しむことが出来ます♪
床はフローリングになっており、足音などを和らげる効果があります♪
~気になる水周り~
バス・トイレは別になっているのでそれぞれをゆったりとお使いいただけます。
浴室には浴室乾燥機や追炊き機能など人気の設備が充実しています。
浴室前に脱衣所兼洗面室がありますので、居室や廊下で服を脱ぐ必要が御座いません。
また、洗濯機置き場は備え付けられています。
洗濯と乾燥をお手軽に行うことが可能な造りになっています♪
キッチンには2口コンロを採用したキッチンになっていますので複数の料理を一緒に調理が出来ます。
さらに1Rタイプなので、キッチンは居室に備えつけられっています。
調理して直ぐに食事を取ることが可能!
~セキュリティ~
もちろんオートロック完備!
宅配ボックスもありますので日中外出している人でも気軽に荷物の受け取りが可能♪
万全のセキュリティ体制です!
是非、ご覧下さい。間取図 所在階 間取り 面積 賃料 管理費 敷金 礼金 更新
5階 1DK 36.86㎡ 187,000円 10,000円 1ヶ月 1ヶ月 所在階5階
面積36.86㎡
間取り1DK賃料 187,000円管理費10,000円
敷金1ヶ月
礼金1ヶ月♥
お問い合わせ
♥お気に入り お問い合わせ 
7階 1K 31.98㎡ 165,000円 10,000円 1ヶ月 1ヶ月 所在階7階
面積31.98㎡
間取り1K賃料 165,000円管理費10,000円
敷金1ヶ月
礼金1ヶ月♥
お問い合わせ
♥お気に入り お問い合わせ 
8階 1K 31.98㎡ 166,000円 10,000円 1ヶ月 1ヶ月 所在階8階
面積31.98㎡
間取り1K賃料 166,000円管理費10,000円
敷金1ヶ月
礼金1ヶ月♥
お問い合わせ
♥お気に入り お問い合わせ 
12階 1SLDK 47.85㎡ 259,000円 12,000円 1ヶ月 1ヶ月 所在階12階
面積47.85㎡
間取り1SLDK賃料 259,000円管理費12,000円
敷金1ヶ月
礼金1ヶ月♥
お問い合わせ
♥お気に入り お問い合わせ 掲載情報について
※随時更新を心がけておりますが、掲載している物件が万が一成約している場合もございますので予めご了承下さいませ。
※駐車場・駐輪場・バイク置場の空き状況についてはお問い合わせ下さい。
※ペット飼育やSOHO利用・楽器使用の可否に関しては、建物の管理規約で可能になっていても、お部屋の所有者様によって禁止の場合もございますので御注意下さい。
詳細はメールやお電話にてスタッフまでご相談下さい。パークアクシス本郷の杜の周辺地図
似た条件の物件
最近見た物件
_id4084.webp)
_id4084.webp)
_id4084.webp)
_id4084.webp)
_id4084.webp)
_id4084.webp)
_id4084.webp)
_id4084.webp)
_id4084.webp)
_id4084.webp)
_id4084.webp)







