文京グリーンコートビュータワー本駒込
♥お気に入り文京グリーンコートビュータワー本駒込
♥お気に入り

リビング

リビング

リビング

リビング

リビング

リビング

収納

収納

収納

文京グリーンコートビュータワー本駒込 7階
賃料 要問合せ(※) 管理費 敷金 1ヶ月 礼金 1ヶ月 間取り 1LDK 面積 64.68㎡ 階数 7階 状態 要問合せ(※) 入居 相談 更新料 新賃料の1ヵ月分相当額 諸費用 取引態様 媒介 設備 タワーマンション、オートロック、バイク置場有、法人契約相談可、駐車場有、駐輪場有、宅配BOX、コンビニ近、BS・CS、CATV、光ファイバー、インターネット対応、専用ゴミ置場、防犯カメラ、TVモニター付インターホン、東京大学自転車圏、エレベーター、昭和小学校エリア、2階以上、眺望良好、日当たり良好、コンロ二口以上、システムキッチン、エアコン、フローリング、独立洗面台、追い焚き機能、トランクルーム、バストイレ別、室内洗濯機置場、洗濯機置場あり、収納、角部屋、礼金1以下、2人入居可、保証会社利用
物件概要
物件名 文京グリーンコートビュータワー本駒込 所在地 東京都文京区本駒込2-28-1 最寄駅 都営三田線 千石駅 徒歩4分
東京メトロ南北線 駒込駅 徒歩11分
JR山手線 駒込駅 徒歩13分
学区 昭和小学校 構造 RC 階数 地上22階建て 地下1階 築年月 1998年01月 駐車場 有(要確認) 備考 ◇保証会社利用必須 ◇保証会社:レジデンシャルパートナーズ他2社 ◇損害保険料:15,980円 ◇鍵交換代:27,500円 ◇口座振替事務手数料:110円(月額) 詳細閲覧ありがとうございます。最新の空室の確認、内覧のご予約はメール・電話にてお問い合わせください。 文京区の賃貸マンション・賃貸アパートはベステックスにおまかせください! 問合番号 642000_B701 更新日 2025/05/14 このお部屋について
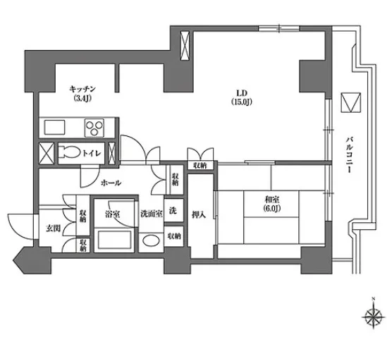
お部屋は7階部分64.68㎡の1LDKタイプ角部屋のご紹介です。
お部屋の注目ポイント
⓵居室を見渡せるカウンターキッチン仕様、グリル付き3口コンロ設置済み♪
⓶追い焚き機能完備、あると重宝する便利な設備です♪
⓷エアコンは壁掛けタイプを2台設置済み♪
高層階にあるお部屋、眺望・風通し良好♪
少しでも気になった方はお気軽にお問い合わせください!
*室内写真は同建物別室です。掲載情報について
※随時更新を心がけておりますが、掲載している物件が万が一成約している場合もございますので予めご了承下さいませ。
※駐車場・駐輪場・バイク置場の空き状況についてはお問い合わせ下さい。
※ペット飼育やSOHO利用・楽器使用の可否に関しては、建物の管理規約で可能になっていても、お部屋の所有者様によって禁止の場合もございますので御注意下さい。
詳細はメールやお電話にてスタッフまでご相談下さい。文京グリーンコートビュータワー本駒込の周辺地図
似た条件の物件
最近見た物件
















キッチンは独立しており3口ガスコンロ・グリル完備。
水廻りはすべて独立でして忙しい朝にもおすすめ!
リビングは約18.4帖と開放感がございます。
また角住戸の二面採光でして明るくお過ごしいただけます。
ぜひお問い合わせくださいませ。