ソアブール千駄木駅前~千駄木駅徒歩1分~
♥お気に入りソアブール千駄木駅前~千駄木駅徒歩1分~
♥お気に入り
ソアブール千駄木駅前 9階
| 賃料 | 要問合せ(※) | 管理費 | |
|---|---|---|---|
| 敷金 | 1ヶ月 | 礼金 | 0ヶ月 |
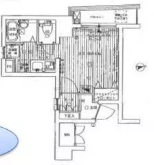
| 間取り | 1K | 面積 | 22.23㎡ |
| 階数 | 9階 | 状態 | 要問合せ(※) |
| 入居 | 相談 | 更新料 | 新賃料の1ヶ月分 |
| 諸費用 | 取引態様 | 媒介 | |
| 設備 | オートロック、宅配BOX、インターネット対応、防犯カメラ、分譲賃貸、東京大学自転車圏、汐見小学校エリア、2階以上、10階以上、二面採光、コンロ二口以上、ガスキッチン、システムキッチン、エアコン、フローリング、追い焚き機能、浴室乾燥、ウォシュレット、バストイレ別、室内洗濯機置場、収納、角部屋、礼金1以下、法人契約相談可 | ||
物件概要
| 物件名 | ソアブール千駄木駅前 | ||
|---|---|---|---|
| 所在地 | 東京都文京区千駄木3-37-3 | ||
| 最寄駅 |
東京メトロ千代田線 千駄木駅 徒歩1分 |
||
| 学区 | 汐見小学校 | 構造 | SRC |
| 階数 | 地上14階建て | 築年月 | 2006年03月 |
| 駐車場 | |||
| 備考 | 詳細閲覧ありがとうございます。最新の空室の確認、内覧のご予約はメール・電話にてお問い合わせください。 文京区の賃貸マンション・賃貸アパートはベステックスにおまかせください! | ||
| 問合番号 | 20210714-901 | ||
| 更新日 | 2021/07/14 | ||
このお部屋について
お部屋は9階部分にございます。
専有面積:22.23㎡の角部屋1Kタイプです。
お部屋の注目ポイント
⓵雨の日でも洗濯物を乾かせる浴室乾燥機完備♪
⓶二口コンロ完備!システムキッチン!
⓷2面採光の洋室はフローリング貼り、お手入れが簡単です♪
少しでも気になった方はお気軽にお問い合わせください!
専有面積:22.23㎡の角部屋1Kタイプです。
お部屋の注目ポイント
⓵雨の日でも洗濯物を乾かせる浴室乾燥機完備♪
⓶二口コンロ完備!システムキッチン!
⓷2面採光の洋室はフローリング貼り、お手入れが簡単です♪
少しでも気になった方はお気軽にお問い合わせください!
掲載情報について
※随時更新を心がけておりますが、掲載している物件が万が一成約している場合もございますので予めご了承下さいませ。
※駐車場・駐輪場・バイク置場の空き状況についてはお問い合わせ下さい。
※ペット飼育やSOHO利用・楽器使用の可否に関しては、建物の管理規約で可能になっていても、お部屋の所有者様によって禁止の場合もございますので御注意下さい。
詳細はメールやお電話にてスタッフまでご相談下さい。
※駐車場・駐輪場・バイク置場の空き状況についてはお問い合わせ下さい。
※ペット飼育やSOHO利用・楽器使用の可否に関しては、建物の管理規約で可能になっていても、お部屋の所有者様によって禁止の場合もございますので御注意下さい。
詳細はメールやお電話にてスタッフまでご相談下さい。






