フェニックス飯田橋
♥お気に入りフェニックス飯田橋
♥お気に入り






フェニックス飯田橋 2階
賃料 要問合せ(※) 管理費 敷金 0ヶ月 礼金 1ヶ月 間取り 1K 面積 25.50㎡ 階数 2階 状態 要問合せ(※) 入居 相談 更新料 新賃料の1ヶ月 諸費用 取引態様 媒介 設備 新築、オートロック、バイク置場有、駐車場有、駐輪場有、宅配BOX、コンビニ近、BS・CS、光ファイバー、インターネット対応、専用ゴミ置場、TVモニター付インターホン、分譲賃貸、東京大学自転車圏、ペット可、エレベーター、金富小学校エリア、2階以上、二面採光、コンロ二口以上、ガスキッチン、システムキッチン、エアコン、フローリング、独立洗面台、追い焚き機能、浴室乾燥、ウォシュレット、バストイレ別、室内洗濯機置場、収納、角部屋、礼金1以下、保証会社利用、法人契約相談可 物件概要
物件名 フェニックス飯田橋 所在地 東京都文京区水道1-2-6 最寄駅 都営大江戸線 飯田橋駅 徒歩9分
JR中央・総武線 飯田橋駅 徒歩9分
東京メトロ丸ノ内線 後楽園駅 徒歩10分
学区 金富小学校 構造 RC 階数 地上6階建て 築年月 2013年07月 駐車場 有:30,000円税別 (敷金1ヵ月・礼金0ヶ月 ※要確認) 長さ:5,000mm 幅:2,300mm 高:2,450mm 備考 文京区水道の新築分譲賃貸マンション【フェニックス飯田橋】のご紹介です。 詳細閲覧ありがとうございます。最新の空室の確認、内覧のご予約はメール・電話にてお問い合わせください。 文京区の賃貸マンション・賃貸アパートはベステックスにおまかせください! 問合番号 8916 更新日 2020/12/24 このお部屋について
フェニックス飯田橋は、人気の分譲賃貸マンション。ただの賃貸マンションとは、一味も二味も違うハイグレードマンションです。今回はそのフェニックス飯田橋の、2階2Kのお部屋をご紹介します。
フェニックス飯田橋は、分譲賃貸ということで共有設備から充実したマンションです。
高級感あるエントランスは、奥に進むとオートロック。物件各所には防犯カメラも設置されています。また各部屋にはテレビインターホンもあるので、防犯設備が充実しています。
ネット通販時代には、なくてはならない宅配ボックスも。分譲マンションということなので、敷地内に駐車場もあります。もちろん駐輪場とバイク置き場もあります。住民の様々な移動手段に対応しているところがポイントです。
ほかにも24時間ゴミ出し可能の、物件専用ごみ置き場があります。曜日や時間を気にせず、ごみ出しができるので便利。お出かけ時に合わせて、ごみ出しができます。
フェニックス飯田橋は、周辺環境も充実。最寄りの飯田橋駅へは、約9分の距離です。物件から飯田橋駅への道のりには、スーパーのまいばすけっとやいなげや、コンビニのセブンイレブン、ファミリーマート、ローソンなどがあります。いつものコースにこれらのお店があるのが便利。日用品の買い揃えにも苦労しません。
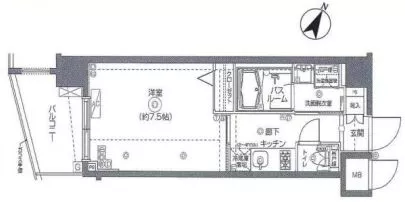
ご紹介する1Kのお部屋も充実。バストイレ別で、洗面脱衣所あり。トイレはウォシュレットが使えるほか、用品入れの戸棚があります。バスルームは、浴室乾燥と追い焚きが使えるハイグレードシステムバス。ゆとりのある広さなので、お風呂も快適。一日の疲れが癒えること間違いなしです。洗面脱衣所には洗濯機置き場と、独立洗面所。広さも収納もあるのが嬉しいですね。歯磨きや洗顔のほか、化粧室としても使えます。
キッチンは機能的な2口ガスコンロのシステムキッチン。コンロもシンクも調理台もフラットなデザインで、お手入れがしやすい仕様です。キッチン上下には収納用の棚、コンロの上部にはレンジフードがあります。
キッチン奥の洋室は、7.5帖の広さ。一人暮らしのお部屋には、十分です。角部屋ということで窓は2つ。バルコニーの掃き出し窓と、明かり取り・換気用の腰高窓があります。ほかにも洋室には、エアコンとクローゼットあり。生活に必要な設備が揃っています。
お部屋のデザインは、高級感ある白を基調。用途に合わせてフローリングとフロアマットの床になっています。分譲ならではのデザイン性の高さが、お部屋の最大の魅力です。この魅力的なお部屋、フェニックス飯田橋の2階1Kのお部屋が気になった方は、お気軽にご連絡ください。掲載情報について
※随時更新を心がけておりますが、掲載している物件が万が一成約している場合もございますので予めご了承下さいませ。
※駐車場・駐輪場・バイク置場の空き状況についてはお問い合わせ下さい。
※ペット飼育やSOHO利用・楽器使用の可否に関しては、建物の管理規約で可能になっていても、お部屋の所有者様によって禁止の場合もございますので御注意下さい。
詳細はメールやお電話にてスタッフまでご相談下さい。フェニックス飯田橋の周辺地図
似た条件の物件
最近見た物件









