スタッフのコメント
鳥羽桃子
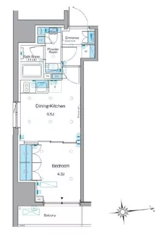
ダイニングと洋室はスライド式の扉で仕切っており、デッドスペースを最小限にしております。ダイニング側は梁がなく、家具の配置による生活の動線の確保もしやすい!また、奥に広がる間取りだと手前のお部屋への最高を心配される方が多いですが、角部屋二面採光のため不安も解消◎バルコニーは東側にございます★ぜひお問い合わせください!

| 賃料 | 要問合せ(※) | 管理費 | |
|---|---|---|---|
| 敷金 | 1ヶ月 | 礼金 | 1ヶ月 |
| 間取り | 1DK | 面積 | 29.48㎡ |
| 階数 | 9階 | 状態 | 要問合せ(※) |
| 入居 | 相談 | 更新料 | 新賃料の1ヵ月分 |
| 諸費用 | 取引態様 | 媒介 | |
| 設備 | オートロック、バイク置場有、法人契約相談可、駐車場有、駐輪場有、宅配BOX、コンビニ近、CATV、光ファイバー、インターネット対応、専用ゴミ置場、防犯カメラ、TVモニター付インターホン、東京大学徒歩圏、エレベーター、湯島小学校エリア、2階以上、コンロ二口以上、ガスキッチン、システムキッチン、エアコン、フローリング、独立洗面台、追い焚き機能、浴室乾燥、ウォシュレット、24時間換気システム、バストイレ別、室内洗濯機置場、礼金1以下、2人入居可 | ||
鳥羽桃子
| 物件名 | ルフォンプログレ文京湯島 | ||
|---|---|---|---|
| 所在地 | 東京都文京区湯島3-12-13 | ||
| 最寄駅 |
東京メトロ千代田線 湯島駅 徒歩3分 東京メトロ銀座線 末広町駅 徒歩5分 都営大江戸線 上野御徒町駅 徒歩8分 |
||
| 学区 | 湯島小学校 | 構造 | RC |
| 階数 | 地上14階建て | 築年月 | 2020年09月 |
| 駐車場 | |||
| 備考 | ◇ペット飼育時:敷金1カ月積み増し ◇初回保証料:月額総賃料50% ◇鍵交換代:22,000円 ◇口座振替手数料:110円 ◇退去時クリーニング費用:41,800円 詳細閲覧ありがとうございます。最新の空室の確認、内覧のご予約はメール・電話にてお問い合わせください。 文京区の賃貸マンション・賃貸アパートはベステックスにおまかせください! | ||
| 問合番号 | 20200717-904 | ||
| 更新日 | 2023/10/02 | ||
| 間取図 | 所在階 | 間取り | 面積 | 賃料 | 管理費 | 敷金 | 礼金 | ||||
|---|---|---|---|---|---|---|---|---|---|---|---|
![]() |
4階 | 1DK | 29.48㎡ | 172,000円 | 15,000円 | 1ヶ月 | 1ヶ月 |
所在階4階 面積29.48㎡ 間取り1DK 賃料 172,000円
|
管理費15,000円 敷金1ヶ月 礼金1ヶ月 |
♥ お問い合わせ
|
♥お気に入り お問い合わせ |
![]() |
4階 | 2LDK | 53.26㎡ | 315,000円 | 15,000円 | 1ヶ月 | 1ヶ月 |
所在階4階 面積53.26㎡ 間取り2LDK 賃料 315,000円
|
管理費15,000円 敷金1ヶ月 礼金1ヶ月 |
♥ お問い合わせ
|
♥お気に入り お問い合わせ |
![]() |
10階 | 1DK | 26.03㎡ | 172,000円 | 15,000円 | 1ヶ月 | 1ヶ月 |
所在階10階 面積26.03㎡ 間取り1DK 賃料 172,000円
|
管理費15,000円 敷金1ヶ月 礼金1ヶ月 |
♥ お問い合わせ
|
♥お気に入り お問い合わせ |