アトラス本郷赤門前 ~東大隣接の高級マンション~
♥お気に入りアトラス本郷赤門前 ~東大隣接の高級マンション~
♥お気に入り










アトラス本郷赤門前 10階
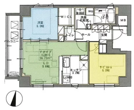
賃料 要問合せ(※) 管理費 敷金 1ヶ月 礼金 1ヶ月 間取り 1SLDK 面積 56.73㎡ 階数 10階 状態 要問合せ(※) 入居 即入居可 更新料 新賃料の1ヶ月分 諸費用 取引態様 媒介 設備 オートロック、駐輪場有、宅配BOX、コンビニ近、BS・CS、CATV、光ファイバー、インターネット対応、専用ゴミ置場、防犯カメラ、TVモニター付インターホン、分譲賃貸、東京大学徒歩圏、エレベーター、本郷小学校エリア、2階以上、10階以上、二面採光、日当たり良好、カウンターキッチン、コンロ二口以上、ガスキッチン、システムキッチン、ウォークインクローゼット、エアコン、フローリング、独立洗面台、追い焚き機能、浴室乾燥、ウォシュレット、24時間換気システム、バストイレ別、室内洗濯機置場、床暖房、収納、角部屋、礼金1以下、2人入居可、法人契約相談可 物件概要
物件名 アトラス本郷赤門前 所在地 東京都文京区本郷4丁目1-8 最寄駅 都営大江戸線 本郷三丁目駅 徒歩2分
東京メトロ丸ノ内線 本郷三丁目駅 徒歩3分
都営三田線 春日駅 徒歩10分
学区 本郷小学校 構造 RC 階数 地上11階建て 築年月 2011年03月 駐車場 無 備考 アトラス本郷赤門前の賃貸マンション情報です♪ ※写真は同マンション他部屋のものになります。 詳細閲覧ありがとうございます。最新の空室の確認、内覧のご予約はメール・電話にてお問い合わせください。 文京区の賃貸マンション・賃貸アパートはベステックスにおまかせください! 問合番号 5160 更新日 2020/06/09 このお部屋について
東大至近!
駅近好立地分譲賃貸マンション【アトラス本郷赤門前】
10階56.73㎡、1SLDK+WICタイプのご紹介です。
~おすすめポイント~
①オートロック、防犯カメラ、24時間セキュリティ完備!!
②リビングスペースには床暖房で体の芯からあったか♪
③東京大学赤門至近♪
LDKは約12.8帖(LD:9.6帖、K:3.2帖)。キッチンは人気の対面式カウンターキッチン♪
リビングを眺めながらお料理♪
ガス3口コンロシステムキッチン!お料理はかどりそうです!
寝室約6.0帖、広々ウォークインクローゼット完備で使い勝手良好。
サービスルームも約6.0帖。子供部屋・書斎にいかがでしょうか?
インターネット完備♪
是非一度ご覧ください。
※写真は同マンション他部屋のものになります。掲載情報について
※随時更新を心がけておりますが、掲載している物件が万が一成約している場合もございますので予めご了承下さいませ。
※駐車場・駐輪場・バイク置場の空き状況についてはお問い合わせ下さい。
※ペット飼育やSOHO利用・楽器使用の可否に関しては、建物の管理規約で可能になっていても、お部屋の所有者様によって禁止の場合もございますので御注意下さい。
詳細はメールやお電話にてスタッフまでご相談下さい。アトラス本郷赤門前の周辺地図
似た条件の物件
最近見た物件












