文京グリーンコートビュータワー本駒込
♥お気に入り文京グリーンコートビュータワー本駒込
♥お気に入り
文京グリーンコートビュータワー本駒込 17階
| 賃料 | 要問合せ(※) | 管理費 | |
|---|---|---|---|
| 敷金 | 1ヶ月 | 礼金 | 1ヶ月 |
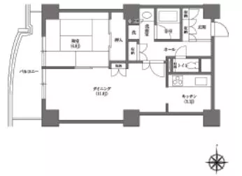
| 間取り | 1LDK | 面積 | 60.63㎡ |
| 階数 | 17階 | 状態 | 要問合せ(※) |
| 入居 | 相談 | 更新料 | 1ヶ月(新賃料) |
| 諸費用 | 取引態様 | 媒介 | |
| 設備 | タワーマンション、オートロック、バイク置場有、駐車場有、駐輪場有、宅配BOX、コンビニ近、BS・CS、CATV、光ファイバー、インターネット対応、専用ゴミ置場、防犯カメラ、TVモニター付インターホン、東京大学自転車圏、エレベーター、昭和小学校エリア、眺望良好、日当たり良好、コンロ二口以上、ガスキッチン、システムキッチン、エアコン、フローリング、独立洗面台、トランクルーム、バストイレ別、室内洗濯機置場、収納、2人入居可、保証会社利用、法人契約相談可 | ||
物件概要
| 物件名 | 文京グリーンコートビュータワー本駒込 | ||
|---|---|---|---|
| 所在地 | 東京都文京区本駒込2-28-1 | ||
| 最寄駅 |
都営三田線 千石駅 徒歩4分 東京メトロ南北線 駒込駅 徒歩11分 JR山手線 駒込駅 徒歩13分 |
||
| 学区 | 昭和小学校 | 構造 | RC |
| 階数 | 地上22階建て 地下1階 | 築年月 | 1998年01月 |
| 駐車場 | 有(要確認) | ||
| 備考 | 詳細閲覧ありがとうございます。最新の空室の確認、内覧のご予約はメール・電話にてお問い合わせください。 文京区の賃貸マンション・賃貸アパートはベステックスにおまかせください! | ||
| 問合番号 | 577646 | ||
| 更新日 | 2020/04/27 | ||
このお部屋について
昭和小学区のタワーマンション【文京グリーンコートビュータワー本駒込】の17階部分のご紹介です。
専有面積:60.63㎡の1LDKタイプです。
注目ポイント♪
①リビングは広々15.1畳♪居室部分は和室仕様となっております♪
②物件は文京区でも人気の小学区の昭和小学区となっております♪
③文京グリーンコート至近♪スーパーやカフェなどが併設されておりますので、お買い物も楽ちんです♪
水廻りはバス・トイレ・洗面台すべて独立♪
キッチンもガス3口コンロ完備の大きなシステムキッチン完備!
是非お気軽にお問い合わせください。
専有面積:60.63㎡の1LDKタイプです。
注目ポイント♪
①リビングは広々15.1畳♪居室部分は和室仕様となっております♪
②物件は文京区でも人気の小学区の昭和小学区となっております♪
③文京グリーンコート至近♪スーパーやカフェなどが併設されておりますので、お買い物も楽ちんです♪
水廻りはバス・トイレ・洗面台すべて独立♪
キッチンもガス3口コンロ完備の大きなシステムキッチン完備!
是非お気軽にお問い合わせください。
掲載情報について
※随時更新を心がけておりますが、掲載している物件が万が一成約している場合もございますので予めご了承下さいませ。
※駐車場・駐輪場・バイク置場の空き状況についてはお問い合わせ下さい。
※ペット飼育やSOHO利用・楽器使用の可否に関しては、建物の管理規約で可能になっていても、お部屋の所有者様によって禁止の場合もございますので御注意下さい。
詳細はメールやお電話にてスタッフまでご相談下さい。
※駐車場・駐輪場・バイク置場の空き状況についてはお問い合わせ下さい。
※ペット飼育やSOHO利用・楽器使用の可否に関しては、建物の管理規約で可能になっていても、お部屋の所有者様によって禁止の場合もございますので御注意下さい。
詳細はメールやお電話にてスタッフまでご相談下さい。





