アーバイル文京白山 ~分譲賃貸マンション~
♥お気に入りアーバイル文京白山 ~分譲賃貸マンション~
♥お気に入り
アーバイル文京白山 1階
| 賃料 | 要問合せ(※) | 管理費 | |
|---|---|---|---|
| 敷金 | 1ヶ月 | 礼金 | 1ヶ月 |
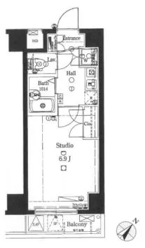
| 間取り | 1K | 面積 | 21.51㎡ |
| 階数 | 1階 | 状態 | 要問合せ(※) |
| 入居 | 即 | 更新料 | 新賃料1ヶ月分 |
| 諸費用 | 取引態様 | 媒介 | |
| 設備 | オートロック、駐輪場有、宅配BOX、コンビニ近、BS・CS、CATV、光ファイバー、インターネット対応、専用ゴミ置場、防犯カメラ、TVモニター付インターホン、分譲賃貸、東京大学自転車圏、エレベーター、明化小学校エリア、ガスキッチン、システムキッチン、エアコン、フローリング、ウォシュレット、24時間換気システム、バストイレ別、室内洗濯機置場、収納、法人契約相談可 | ||
物件概要
| 物件名 | アーバイル文京白山 | ||
|---|---|---|---|
| 所在地 | 東京都文京区白山5丁目17-8 | ||
| 最寄駅 |
都営三田線 千石駅 徒歩2分 東京メトロ南北線 本駒込駅 徒歩12分 |
||
| 学区 | 明化小学校 | 構造 | RC |
| 階数 | 地上8階建て | 築年月 | 2004年10月 |
| 駐車場 | 無 | ||
| 備考 | 詳細閲覧ありがとうございます。最新の空室の確認、内覧のご予約はメール・電話にてお問い合わせください。 文京区の賃貸マンション・賃貸アパートはベステックスにおまかせください! | ||
| 問合番号 | 4545102 | ||
| 更新日 | 2019/09/08 | ||
このお部屋について
文京区白山5丁目にございます賃貸マンション【アーバイル文京白山】1階、1Kタイプのお部屋のご紹介です。
~オススメポイント~
①鉄筋コンクリート造で耐震性・防音性◎
②人気のバス・トイレ別!
③『千石』駅徒歩2分の好立地♪
設備充実の賃貸マンション【アーバイル文京白山】お気軽にお問い合わせください♪
~オススメポイント~
①鉄筋コンクリート造で耐震性・防音性◎
②人気のバス・トイレ別!
③『千石』駅徒歩2分の好立地♪
設備充実の賃貸マンション【アーバイル文京白山】お気軽にお問い合わせください♪
掲載情報について
※随時更新を心がけておりますが、掲載している物件が万が一成約している場合もございますので予めご了承下さいませ。
※駐車場・駐輪場・バイク置場の空き状況についてはお問い合わせ下さい。
※ペット飼育やSOHO利用・楽器使用の可否に関しては、建物の管理規約で可能になっていても、お部屋の所有者様によって禁止の場合もございますので御注意下さい。
詳細はメールやお電話にてスタッフまでご相談下さい。
※駐車場・駐輪場・バイク置場の空き状況についてはお問い合わせ下さい。
※ペット飼育やSOHO利用・楽器使用の可否に関しては、建物の管理規約で可能になっていても、お部屋の所有者様によって禁止の場合もございますので御注意下さい。
詳細はメールやお電話にてスタッフまでご相談下さい。





