文京GARDEN THE WEST ~春日・後楽園再開発エリア・駅近好立地♪~
♥お気に入り文京GARDEN THE WEST ~春日・後楽園再開発エリア・駅近好立地♪~
♥お気に入り



























文京GARDEN THE WEST 13階
賃料 要問合せ(※) 管理費 敷金 1ヶ月 礼金 1ヶ月 間取り 1R 面積 31.87㎡ 階数 13階 状態 要問合せ(※) 入居 相談 更新料 新賃料の1ヶ月分 諸費用 取引態様 媒介 設備 オートロック、法人契約相談可、駐輪場有、宅配BOX、コンビニ近、CATV、インターネット対応、専用ゴミ置場、防犯カメラ、TVモニター付インターホン、分譲賃貸、東京大学自転車圏、エレベーター、礫川小学校エリア、最上階、二面採光、コンロ二口以上、ガスキッチン、システムキッチン、エアコン、フローリング、独立洗面台、追い焚き機能、浴室乾燥、ウォシュレット、24時間換気システム、バストイレ別、室内洗濯機置場、床暖房、収納、角部屋、礼金1以下、2人入居可
物件概要
物件名 文京GARDEN THE WEST 所在地 東京都文京区小石川1-4-12 最寄駅 都営三田線 春日駅 徒歩1分
東京メトロ南北線 後楽園駅 徒歩1分
東京メトロ丸ノ内線 後楽園駅 徒歩4分
学区 礫川小学校 構造 RC 階数 地上13階建て 地下1階 築年月 2018年09月 駐車場 無 備考 初回保証料:50%(日本セーフティー) 24時間サポート:1100円/月 火災保険:要加入 詳細閲覧ありがとうございます。最新の空室の確認、内覧のご予約はメール・電話にてお問い合わせください。 文京区の賃貸マンション・賃貸アパートはベステックスにおまかせください! 問合番号 238000_1301 更新日 2023/10/14 このお部屋について
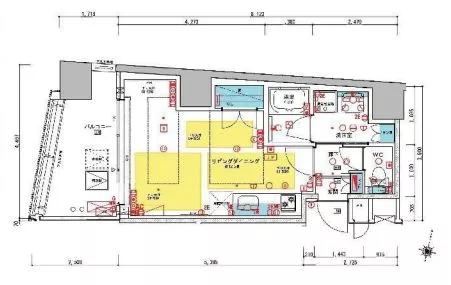
最上階の13階部分、角部屋のゆったりワンルームをご紹介♪
~オススメのポイント~
1.床暖房も設置されたリビング空間は10帖超で、窓も大きく開放的♪
2.水まわりも広々とし、設備面はもちろん使いやすい仕様です!
3.駅目の前の築浅分譲マンションの最上階角部屋というプレミアム感♪掲載情報について
※随時更新を心がけておりますが、掲載している物件が万が一成約している場合もございますので予めご了承下さいませ。
※駐車場・駐輪場・バイク置場の空き状況についてはお問い合わせ下さい。
※ペット飼育やSOHO利用・楽器使用の可否に関しては、建物の管理規約で可能になっていても、お部屋の所有者様によって禁止の場合もございますので御注意下さい。
詳細はメールやお電話にてスタッフまでご相談下さい。文京GARDEN THE WESTの周辺地図
似た条件の物件
最近見た物件
































31.87㎡の広々贅沢ワンルーム。
13階最上階となっております。
通り向きになっておりますが大通り沿いではないため音はそこまで気にならないかと思われます。
バストイレ洗面台はすべて独立!
是非お問い合わせくださいませ。