ザ・パークハビオ上野レジデンス〜ペット飼育・楽器演奏相談可!〜
♥お気に入りザ・パークハビオ上野レジデンス〜ペット飼育・楽器演奏相談可!〜
♥お気に入り






















ザ・パークハビオ上野レジデンス 2階
賃料 要問合せ(※) 管理費 敷金 1ヶ月 礼金 1ヶ月 間取り 1K 面積 25.58㎡ 階数 2階 状態 要問合せ(※) 入居 即入居可 更新料 1ヶ月(新賃料) 諸費用 取引態様 媒介 設備 オートロック、バイク置場有、駐車場有、駐輪場有、宅配BOX、コンビニ近、BS・CS、CATV、光ファイバー、インターネット対応、専用ゴミ置場、防犯カメラ、TVモニター付インターホン、ペット可、エレベーター、コンロ二口以上、ガスキッチン、システムキッチン、エアコン、フローリング、独立洗面台、追い焚き機能、浴室乾燥、ウォシュレット、24時間換気システム、バストイレ別、室内洗濯機置場、収納、保証会社利用、楽器相談可、SOHO可、法人契約相談可 物件概要
物件名 ザ・パークハビオ上野レジデンス 所在地 東京都台東区上野3-10-11 最寄駅 JR山手線 御徒町駅 徒歩2分
JR京浜東北線 御徒町駅 徒歩2分
東京メトロ日比谷線 仲御徒町駅 徒歩3分
学区 構造 RC 階数 地上12階建て 地下1階 築年月 2015年12月 駐車場 要空き確認 備考 詳細閲覧ありがとうございます。最新の空室の確認、内覧のご予約はメール・電話にてお問い合わせください。 文京区の賃貸マンション・賃貸アパートはベステックスにおまかせください! 問合番号 816000a 更新日 2019/03/01 このお部屋について
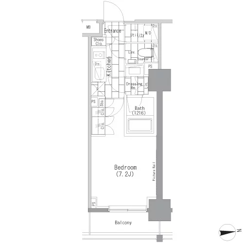
2階部分、1Kタイプのお部屋のご紹介です。
専有面積25.58㎡の広めのお部屋。
◎ フローリング貼りの洋室で約7.2帖。大きめのクローゼットがあります!
家具の配置など、お部屋のレイアウトも楽々♪ エアコンも照明も設置済み!
◎ ガス2口のシステムキッチン!収納スペースがあるので、食器類や調理器具もスッキリと収納できます♪
◎ バス・トイレ別! トイレは温水洗浄機能付♪バスには浴室乾燥機と追焚機能が揃っています☆
脱衣所には人気の独立洗面台が完備!
玄関にシューズボックス、ユーティリティスペースに室内洗濯機置場が備わった、
【ザ・パークハビオ上野レジデンス】の2階の1Kタイプです。
お気軽に、お問い合わせ下さい!
台東区の賃貸も、ベステックス掲載情報について
※随時更新を心がけておりますが、掲載している物件が万が一成約している場合もございますので予めご了承下さいませ。
※駐車場・駐輪場・バイク置場の空き状況についてはお問い合わせ下さい。
※ペット飼育やSOHO利用・楽器使用の可否に関しては、建物の管理規約で可能になっていても、お部屋の所有者様によって禁止の場合もございますので御注意下さい。
詳細はメールやお電話にてスタッフまでご相談下さい。ザ・パークハビオ上野レジデンスの周辺地図
似た条件の物件
最近見た物件
























