スカイコート文京茗荷谷 ~分譲賃貸マンション~
♥お気に入りスカイコート文京茗荷谷 ~分譲賃貸マンション~
♥お気に入り
スカイコート文京茗荷谷 5階
| 賃料 | 要問合せ(※) | 管理費 | |
|---|---|---|---|
| 敷金 | 0ヶ月 | 礼金 | 1ヶ月 |
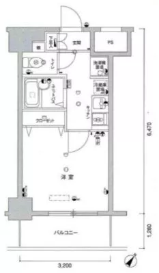
| 間取り | 1K | 面積 | 20.70㎡ |
| 階数 | 5階 | 状態 | 要問合せ(※) |
| 入居 | 相談 | 更新料 | 新賃料の1ヶ月分 |
| 諸費用 | 取引態様 | 媒介 | |
| 設備 | オートロック、駐輪場有、宅配BOX、BS・CS、CATV、光ファイバー、インターネット対応、分譲賃貸、エレベーター、2階以上、コンロ二口以上、システムキッチン、エアコン、フローリング、バストイレ別、室内洗濯機置場、収納、礼金1以下、敷金なし、保証会社利用、法人契約相談可 | ||
物件概要
| 物件名 | スカイコート文京茗荷谷 | ||
|---|---|---|---|
| 所在地 | 東京都文京区大塚4-1-16 | ||
| 最寄駅 |
東京メトロ丸ノ内線 新大塚駅 徒歩10分 東京メトロ丸ノ内線 茗荷谷駅 徒歩11分 都営三田線 千石駅 徒歩12分 |
||
| 学区 | 構造 | RC | |
| 階数 | 地上9階建て | 築年月 | 2003年11月 |
| 駐車場 | |||
| 備考 | 詳細をご覧いただきましてありがとうございます。ご内見の際は現地待ち合わせも可能ですのでお気軽にご相談ください。 詳細閲覧ありがとうございます。最新の空室の確認、内覧のご予約はメール・電話にてお問い合わせください。 文京区の賃貸マンション・賃貸アパートはベステックスにおまかせください! | ||
| 問合番号 | 181110 | ||
| 更新日 | 2018/11/10 | ||
このお部屋について
お部屋は5階部分にございます。
専有面積:20.70㎡の1Kタイプです。
居室にはクローゼットが完備されており、
荷物にスペースを取られすぎずに、より居室本来の広さをお使い頂けます。
床はお手入れの簡単なフローリング、高級感も感じられます。エアコンは既に設置済みですので1年通して快適にお過ごし頂けます。
バルコニーは南東向きです☆
キッチンは人気のシステムキッチン仕様。
料理お好きには嬉しい2口コンロが完備されております。
バス・トイレは別となっている為、水回りをゆったりとお使い頂けます。
浴室内には手洗い時や洗顔時に重宝する洗面台が設置されている為便利です。
洗濯機置場はもちろん室内置き。
雨の日も快適にお洗濯できます♪
玄関前にはシューズボックスが設置されておりますので、
お手持ちの靴の置き場には困ることはないでしょう☆
是非お気軽にお問い合わせください!
専有面積:20.70㎡の1Kタイプです。
居室にはクローゼットが完備されており、
荷物にスペースを取られすぎずに、より居室本来の広さをお使い頂けます。
床はお手入れの簡単なフローリング、高級感も感じられます。エアコンは既に設置済みですので1年通して快適にお過ごし頂けます。
バルコニーは南東向きです☆
キッチンは人気のシステムキッチン仕様。
料理お好きには嬉しい2口コンロが完備されております。
バス・トイレは別となっている為、水回りをゆったりとお使い頂けます。
浴室内には手洗い時や洗顔時に重宝する洗面台が設置されている為便利です。
洗濯機置場はもちろん室内置き。
雨の日も快適にお洗濯できます♪
玄関前にはシューズボックスが設置されておりますので、
お手持ちの靴の置き場には困ることはないでしょう☆
是非お気軽にお問い合わせください!
掲載情報について
※随時更新を心がけておりますが、掲載している物件が万が一成約している場合もございますので予めご了承下さいませ。
※駐車場・駐輪場・バイク置場の空き状況についてはお問い合わせ下さい。
※ペット飼育やSOHO利用・楽器使用の可否に関しては、建物の管理規約で可能になっていても、お部屋の所有者様によって禁止の場合もございますので御注意下さい。
詳細はメールやお電話にてスタッフまでご相談下さい。
※駐車場・駐輪場・バイク置場の空き状況についてはお問い合わせ下さい。
※ペット飼育やSOHO利用・楽器使用の可否に関しては、建物の管理規約で可能になっていても、お部屋の所有者様によって禁止の場合もございますので御注意下さい。
詳細はメールやお電話にてスタッフまでご相談下さい。




_id3957.webp)

