セントレイ御徒町
♥お気に入りセントレイ御徒町
♥お気に入り
セントレイ御徒町 2階
| 賃料 | 要問合せ(※) | 管理費 | |
|---|---|---|---|
| 敷金 | 0ヶ月 | 礼金 | 0ヶ月 |
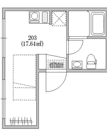
| 間取り | 1R | 面積 | 17.64㎡ |
| 階数 | 2階 | 状態 | 要問合せ(※) |
| 入居 | 7月上旬 | 更新料 | 新賃料の1ヶ月分 |
| 諸費用 | 取引態様 | 媒介 | |
| 設備 | 新築、オートロック、礼金なし、2階以上、エアコン、フローリング、独立洗面台、ウォシュレット、バストイレ別、室内洗濯機置場、収納、角部屋、法人契約相談可 | ||
物件概要
| 物件名 | セントレイ御徒町 | ||
|---|---|---|---|
| 所在地 | 東京都台東区台東2-32-4 | ||
| 最寄駅 |
東京メトロ日比谷線 仲御徒町駅 徒歩5分 都営大江戸線 新御徒町駅 徒歩6分 JR山手線 御徒町駅 徒歩9分 |
||
| 学区 | 構造 | RC | |
| 階数 | 地上3階建て | 築年月 | 2018年07月 |
| 駐車場 | |||
| 備考 | 詳細閲覧ありがとうございます。最新の空室の確認、内覧のご予約はメール・電話にてお問い合わせください。 文京区の賃貸マンション・賃貸アパートはベステックスにおまかせください! | ||
| 問合番号 | 8181203 | ||
| 更新日 | 2018/07/17 | ||
このお部屋について
セントレイ御徒町の2階・ワンルームタイプのお部屋をご紹介いたします。
占有面積は17.64㎡、フローリング仕様になっており万が一汚れてもサッと拭けば綺麗に保つことができます☆
忙しいシングルの方でもお掃除簡単!
居室に窓が二ヶ所ついており、光を多くとりこむことができそうです♪
気になる水回りは、1口コンロつきのシステムキッチン完備☆
洗濯機置き場はもちろん室内!これなら時間帯や天候を気にせず洗濯機をまわせます。洗濯機が長持ちするのも室内洗濯機置き場のメリット♪
バストイレは完全に別で清潔感があります。
パウダールームは脱衣場を兼ねており、独立洗面台とトイレがございます。独立洗面台は老若男女から人気が高い室内設備!これがあれば朝の身支度もスムーズ♪
トイレはもちろんウォシュレットつきで嬉しいです。
初期費用を抑えたい方にもオススメ!
新築のこちらのお部屋を見てみたい方、お問い合わせはべステックスまでご連絡ください☆
占有面積は17.64㎡、フローリング仕様になっており万が一汚れてもサッと拭けば綺麗に保つことができます☆
忙しいシングルの方でもお掃除簡単!
居室に窓が二ヶ所ついており、光を多くとりこむことができそうです♪
気になる水回りは、1口コンロつきのシステムキッチン完備☆
洗濯機置き場はもちろん室内!これなら時間帯や天候を気にせず洗濯機をまわせます。洗濯機が長持ちするのも室内洗濯機置き場のメリット♪
バストイレは完全に別で清潔感があります。
パウダールームは脱衣場を兼ねており、独立洗面台とトイレがございます。独立洗面台は老若男女から人気が高い室内設備!これがあれば朝の身支度もスムーズ♪
トイレはもちろんウォシュレットつきで嬉しいです。
初期費用を抑えたい方にもオススメ!
新築のこちらのお部屋を見てみたい方、お問い合わせはべステックスまでご連絡ください☆
掲載情報について
※随時更新を心がけておりますが、掲載している物件が万が一成約している場合もございますので予めご了承下さいませ。
※駐車場・駐輪場・バイク置場の空き状況についてはお問い合わせ下さい。
※ペット飼育やSOHO利用・楽器使用の可否に関しては、建物の管理規約で可能になっていても、お部屋の所有者様によって禁止の場合もございますので御注意下さい。
詳細はメールやお電話にてスタッフまでご相談下さい。
※駐車場・駐輪場・バイク置場の空き状況についてはお問い合わせ下さい。
※ペット飼育やSOHO利用・楽器使用の可否に関しては、建物の管理規約で可能になっていても、お部屋の所有者様によって禁止の場合もございますので御注意下さい。
詳細はメールやお電話にてスタッフまでご相談下さい。
