ADONIS(アドニス)~全部屋広々LDKタイプ以上の高級賃貸マンション~
♥お気に入りADONIS(アドニス)~全部屋広々LDKタイプ以上の高級賃貸マンション~
♥お気に入り










ADONIS(アドニス) 5階
賃料 要問合せ(※) 管理費 敷金 1ヶ月 礼金 1ヶ月 間取り 1LDK 面積 40.76㎡ 階数 5階 状態 要問合せ(※) 入居 要相談 更新料 新賃料の1ヶ月分 諸費用 取引態様 媒介 設備 オートロック、法人契約相談可、駐輪場有、宅配BOX、コンビニ近、CATV、光ファイバー、インターネット対応、専用ゴミ置場、防犯カメラ、TVモニター付インターホン、東京大学徒歩圏、東京大学自転車圏、エレベーター、本郷小学校エリア、2階以上、二面採光、カウンターキッチン、コンロ二口以上、IHキッチン、システムキッチン、エアコン、フローリング、独立洗面台、追い焚き機能、浴室乾燥、ウォシュレット、バストイレ別、室内洗濯機置場、洗濯機置場あり、収納、角部屋、礼金1以下、2人入居可、保証会社利用
物件概要
物件名 ADONIS(アドニス) 所在地 東京都文京区本郷2-30-15 最寄駅 東京メトロ丸ノ内線 本郷三丁目駅 徒歩3分
都営大江戸線 本郷三丁目駅 徒歩3分
都営三田線 水道橋駅 徒歩9分
学区 本郷小学校 構造 RC 階数 地上8階建て 築年月 2015年03月 駐車場 無 備考 初回鍵交換費(税込):35,200円。東京海上ミレア少額短期保険㈱※貸主指定 料金:19000円。保証会社要加入。 詳細閲覧ありがとうございます。最新の空室の確認、内覧のご予約はメール・電話にてお問い合わせください。 文京区の賃貸マンション・賃貸アパートはベステックスにおまかせください! 問合番号 7812829-5001 更新日 2024/02/15 このお部屋について
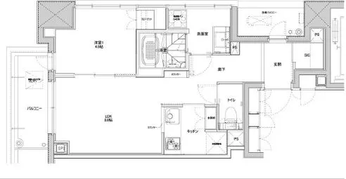
お部屋は5階部分にございます。
専有面積:40.76㎡の角部屋1LDKタイプです。
お部屋の注目ポイント
⓵洋室とリビングを分ける間仕切りを開けておけば広めのワンルームとしても使えます♪
⓶キッチンは人気のカウンター式♪
⓷玄関前には大容量のシューズインクローゼット完備♪
人気の本郷エリア、是非お気軽にお問い合わせください。
*室内写真は同建物別室です。掲載情報について
※随時更新を心がけておりますが、掲載している物件が万が一成約している場合もございますので予めご了承下さいませ。
※駐車場・駐輪場・バイク置場の空き状況についてはお問い合わせ下さい。
※ペット飼育やSOHO利用・楽器使用の可否に関しては、建物の管理規約で可能になっていても、お部屋の所有者様によって禁止の場合もございますので御注意下さい。
詳細はメールやお電話にてスタッフまでご相談下さい。ADONIS(アドニス)の周辺地図
似た条件の物件
最近見た物件















_id2888.webp)
物件は、最寄りの東京メトロ丸の内線・都営大江戸線『本郷三丁目』駅まで徒歩4分でアクセスしていただける交通至便な立地となっており、周辺には飲食店も充実しておりますので、とっても住みやすい環境と言えるかと思います☆治安が良く、完成であることも魅力の一つですね!
2015年竣工・鉄筋コンクリート造の賃貸マンションであるため、耐震性・耐火性等も問題ないかと思います♪ 近年自然災害が増えておりますが、本郷は地盤も強いので、安心してお住まいいただけますね!
設備が充実した1LDKタイプのお部屋、少しでも気になる方は、ぜひ一度お問い合わせ下さいませ☆