レジディア水道橋 ~ペット可高級賃貸マンション~
♥お気に入りレジディア水道橋 ~ペット可高級賃貸マンション~
♥お気に入り







レジディア水道橋 6階
賃料 要問合せ(※) 管理費 敷金 2ヶ月 礼金 1ヶ月 間取り 2LDK 面積 57.96㎡ 階数 6階 状態 要問合せ(※) 入居 更新料 新賃料の1ヵ月分 諸費用 取引態様 媒介 設備 デザイナーズ、オートロック、駐輪場有、宅配BOX、BS・CS、CATV、光ファイバー、インターネット対応、専用ゴミ置場、防犯カメラ、TVモニター付インターホン、分譲賃貸、東京大学自転車圏、礼金なし、ペット可、エレベーター、2階以上、最上階、南向き、二面採光、コンロ二口以上、ガスキッチン、システムキッチン、エアコン、フローリング、独立洗面台、追い焚き機能、浴室乾燥、ウォシュレット、24時間換気システム、バストイレ別、室内洗濯機置場、収納、角部屋、礼金1以下、2人入居可、保証会社利用、法人契約相談可 物件概要
物件名 レジディア水道橋 所在地 東京都千代田区三崎町3-2-6 最寄駅 JR中央・総武線 水道橋駅 徒歩4分
東京メトロ半蔵門線 九段下駅 徒歩7分
東京メトロ東西線 飯田橋駅 徒歩7分
学区 構造 SRC 階数 地上14階建て 地下1階 築年月 2004年12月 駐車場 有 駐車場:機械式(空要確認) 備考 レジディア水道橋の賃貸マンション情報です♪ 写真は同マンション他タイプのものになります。 詳細閲覧ありがとうございます。最新の空室の確認、内覧のご予約はメール・電話にてお問い合わせください。 文京区の賃貸マンション・賃貸アパートはベステックスにおまかせください! 問合番号 183122 更新日 2018/03/31 このお部屋について
千代田区三崎町に佇むペット可高級賃貸マンション【レジディア水道橋】、6階部分をご紹介します!
建物の構造が鉄骨鉄筋コンクリート造ですので、耐震性や遮音性に優れており、安心してお住まいいただけます。
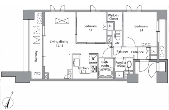
占有面積は57.96㎡、2LDKの間取りのお部屋。リビングダイニングキッチン12.1帖。洋室は5帖と、6帖。どちらの洋室もクローゼット完備!6帖の洋室にはウォークインクローゼット完備!洋服や家電をたっぷり仕舞えそうです。
オールフローリング仕様でお掃除楽ちん☆
高級賃貸マンションならではのハイグレード仕様・設備が揃っております♪TVモニター付インターフォン完備で安心セキュリティ。女性の方やお子さまがいるなら絶対ほしい設備です!
バルコニーございますので、布団や洗濯物を干すことができます。方位は南西むき。
気になる水回りはキッチンが3.1帖。2口ガスコンロつきシステムキッチンございます。L字型のキッチンで、ワークトップを広く使うことができます!
パウダールームには独立洗面台、室内洗濯機置き場があります。
バストイレは完全に別で清潔感があります。もちろんウォシュレットつき!
バスルームには浴室換気乾燥機完備♪花粉症に悩むこの時期や雨で外に洗濯物を干せない日でも浴室乾燥機で洗濯物を乾かせます‼便利♪追い焚き機能もあるので、いつてもアツアツのお湯に浸かることができます。
6階部分いかがでしたか。是非ご覧下さい!
※写真は同物件別室のものになります。掲載情報について
※随時更新を心がけておりますが、掲載している物件が万が一成約している場合もございますので予めご了承下さいませ。
※駐車場・駐輪場・バイク置場の空き状況についてはお問い合わせ下さい。
※ペット飼育やSOHO利用・楽器使用の可否に関しては、建物の管理規約で可能になっていても、お部屋の所有者様によって禁止の場合もございますので御注意下さい。
詳細はメールやお電話にてスタッフまでご相談下さい。レジディア水道橋の周辺地図
似た条件の物件
最近見た物件









