レジディア文京音羽Ⅱ ~高級賃貸マンション~
♥お気に入りレジディア文京音羽Ⅱ ~高級賃貸マンション~
♥お気に入り










レジディア文京音羽Ⅱ 2階
賃料 要問合せ(※) 管理費 敷金 2ヶ月 礼金 1ヶ月 間取り 1K 面積 22.46㎡ 階数 2階 状態 要問合せ(※) 入居 相談 更新料 新賃料の1ヶ月分 諸費用 取引態様 媒介 設備 オートロック、駐車場有、駐輪場有、宅配BOX、コンビニ近、BS・CS、CATV、光ファイバー、インターネット対応、専用ゴミ置場、防犯カメラ、TVモニター付インターホン、エレベーター、青柳小学校エリア、2階以上、南向き、コンロ二口以上、ガスキッチン、システムキッチン、エアコン、フローリング、独立洗面台、追い焚き機能、浴室乾燥、ウォシュレット、バストイレ別、室内洗濯機置場、収納、礼金1以下、法人契約相談可 物件概要
物件名 レジディア文京音羽Ⅱ 所在地 東京都文京区音羽2丁目11-5 最寄駅 東京メトロ有楽町線 護国寺駅 徒歩1分
東京メトロ丸ノ内線 茗荷谷駅 徒歩13分
学区 青柳小学校 構造 RC 階数 地上14階建て 築年月 2008年03月 駐車場 無 備考 詳細閲覧ありがとうございます。最新の空室の確認、内覧のご予約はメール・電話にてお問い合わせください。 文京区の賃貸マンション・賃貸アパートはベステックスにおまかせください! 問合番号 35251 更新日 2018/03/28 このお部屋について
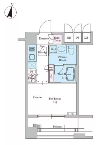
2階部分、1Kタイプのお部屋をご紹介します!
居室はフローリング貼りの洋室で、約5.7帖。ややコンパクトなお部屋ですが、大きな柱が出ていないので家具の配置もしやすくなっています。
クローゼットなどの収納は居室の外、廊下にございます。
キッチンはガス2口のシステムキッチンで、キッチン自体の収納も十分!
コンロは縦に並んだ2口で省スペース。その分、調理スペースが広く取れてお料理も楽々♪
水まわりに関しては、人気のバストイレ別はもちろん、広い独立洗面台も完備!
洗面台の下部には、ビルトインのドラム式洗濯乾燥機が付いています!洗面台も収納豊富です♪
トイレには温水洗浄機能付き。浴室には浴室乾燥機も備わっています♪また、一人暮らしのお部屋では数少ない追い焚き機能まで完備!
高級感ある内廊下仕様や、1階にスーパー、駅徒歩1分の立地など、住みやすい環境が整った人気物件!
是非お問い合わせください!
※写真は同マンション内、同タイプ別部屋のものになります。掲載情報について
※随時更新を心がけておりますが、掲載している物件が万が一成約している場合もございますので予めご了承下さいませ。
※駐車場・駐輪場・バイク置場の空き状況についてはお問い合わせ下さい。
※ペット飼育やSOHO利用・楽器使用の可否に関しては、建物の管理規約で可能になっていても、お部屋の所有者様によって禁止の場合もございますので御注意下さい。
詳細はメールやお電話にてスタッフまでご相談下さい。レジディア文京音羽Ⅱの周辺地図
似た条件の物件
最近見た物件

















