チェスターコート御茶ノ水 ~高級デザイナーズマンション~
♥お気に入りチェスターコート御茶ノ水 ~高級デザイナーズマンション~
♥お気に入り










チェスターコート御茶ノ水 14階
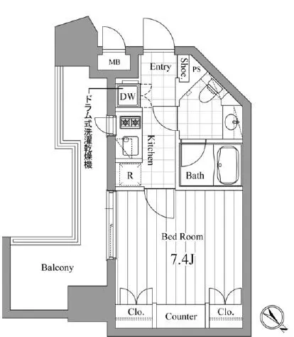
賃料 要問合せ(※) 管理費 敷金 2ヶ月 礼金 1ヶ月 間取り 1K 面積 25.92㎡ 階数 14階 状態 要問合せ(※) 入居 更新料 諸費用 取引態様 媒介 設備 デザイナーズ、オートロック、駐輪場有、宅配BOX、コンビニ近、BS・CS、CATV、光ファイバー、インターネット対応、専用ゴミ置場、防犯カメラ、TVモニター付インターホン、分譲賃貸、東京大学自転車圏、ペット可、エレベーター、10階以上、眺望良好、コンロ二口以上、ガスキッチン、システムキッチン、エアコン、フローリング、独立洗面台、追い焚き機能、浴室乾燥、ウォシュレット、バストイレ別、室内洗濯機置場、収納、角部屋、保証会社利用、法人契約相談可 物件概要
物件名 チェスターコート御茶ノ水 所在地 東京都千代田区神田小川町3-2 最寄駅 JR中央線(快速) 御茶ノ水駅 徒歩7分
東京メトロ千代田線 新御茶ノ水駅 徒歩5分
都営新宿線 小川町駅 徒歩3分
学区 構造 SRC 階数 地上14階建て 地下1階 築年月 2007年03月 駐車場 備考 チェスターコート御茶ノ水の賃貸マンション情報です♪ 詳細閲覧ありがとうございます。最新の空室の確認、内覧のご予約はメール・電話にてお問い合わせください。 文京区の賃貸マンション・賃貸アパートはベステックスにおまかせください! 問合番号 12192132 更新日 2019/01/18 このお部屋について
千代田区神田小川町に佇む、ペット対応高級デザイナーズマンション『チェスターコート御茶ノ水』♪14階部分をご紹介いたします。デザイナーズマンションの名に恥じることのないおしゃれな内外装♪
25.92㎡、1Kタイプのお部屋です♪洋室7.4帖。クローゼットが2つもついており、室内を広く活用できそうです。
TVモニター付インターフォン完備で安心セキュリティ!!女性にもおすすめ!
もちろんエアコン完備で快適☆
気になる水回りは、2口コンロつきシステムキッチンございます。
キッチン隣に冷蔵庫置き場と、扉つき室内洗濯機置き場がございます。
バストイレは完全に別。トイレはウォシュレットつき。パウダールームには独立洗面台♪そして浴室乾燥機つきバスルームございます。カビや湿気対策などもばっちり。
『チェスターコート御茶ノ水』14階はいかがでしたでしょうか。
是非ご覧下さい!!お問い合わせはベステックスまで!
※写真は別室のものとなります。掲載情報について
※随時更新を心がけておりますが、掲載している物件が万が一成約している場合もございますので予めご了承下さいませ。
※駐車場・駐輪場・バイク置場の空き状況についてはお問い合わせ下さい。
※ペット飼育やSOHO利用・楽器使用の可否に関しては、建物の管理規約で可能になっていても、お部屋の所有者様によって禁止の場合もございますので御注意下さい。
詳細はメールやお電話にてスタッフまでご相談下さい。チェスターコート御茶ノ水の周辺地図
最近見た物件













