SYNEX HON-KOMAGOME【シーネクス本駒込】 ~ペット可高級分譲賃貸マンション~
♥お気に入りSYNEX HON-KOMAGOME【シーネクス本駒込】 ~ペット可高級分譲賃貸マンション~
♥お気に入り










シーネクス本駒込 5階
賃料 要問合せ(※) 管理費 敷金 1ヶ月 礼金 1ヶ月 間取り 1K 面積 22.61㎡ 階数 5階 状態 要問合せ(※) 入居 相談 更新料 新賃料の1ヶ月分 諸費用 取引態様 媒介 設備 オートロック、バイク置場有、駐車場有、駐輪場有、宅配BOX、コンビニ近、BS・CS、CATV、光ファイバー、インターネット対応、専用ゴミ置場、防犯カメラ、TVモニター付インターホン、分譲賃貸、東京大学自転車圏、エレベーター、駒本小学校エリア、2階以上、コンロ二口以上、ガスキッチン、システムキッチン、エアコン、フローリング、独立洗面台、浴室乾燥、ウォシュレット、バストイレ別、室内洗濯機置場、収納、礼金1以下、保証会社利用、法人契約相談可 物件概要
物件名 シーネクス本駒込 所在地 東京都文京区本駒込1丁目28-14 最寄駅 東京メトロ南北線 本駒込駅 徒歩5分
都営三田線 白山駅 徒歩10分
都営三田線 千石駅 徒歩10分
学区 駒本小学校 構造 RC 階数 地上14階建て 築年月 2007年07月 駐車場 無 備考 THETAあり。 詳細閲覧ありがとうございます。最新の空室の確認、内覧のご予約はメール・電話にてお問い合わせください。 文京区の賃貸マンション・賃貸アパートはベステックスにおまかせください! 問合番号 764541 更新日 2017/11/30 このお部屋について
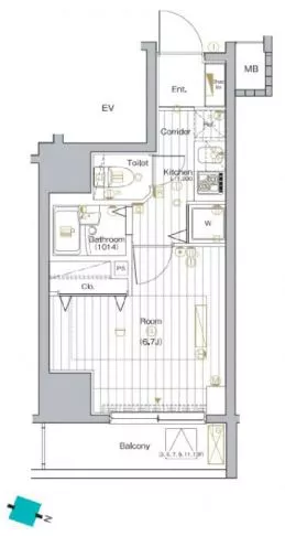
5階部分、22.61㎡の1Kタイプのご紹介です!
フローリング貼りの洋室は6.7帖の広さがあり、一人暮らしには十分な広さ。
クローゼットは大きめで、衣類などの荷物をしまって居室をより広く使うことが出来ます!
キッチンは2口ガスコンロのシステムキッチンで、お料理もはかどります!システムキッチンには収納も豊富で、食器類もスッキリと片付けられます!
玄関のシューズボックスも大きめで女性にも嬉しく、靴の収納にも困りません!
水まわりは人気のバス・トイレ別タイプ。トイレには温水洗浄便座と吊戸棚収納も完備しており、収納付きなので洗剤やトイレットペーパーなどをしまっておくのに便利!
浴室は1014サイズのユニットバスで、浴室乾燥機付きなので雨の日でも洗濯物が乾燥できます!
嬉しいインターネット使用料無料なマンション!
是非お問い合わせください!
※写真は同マンション内別部屋のものになります。掲載情報について
※随時更新を心がけておりますが、掲載している物件が万が一成約している場合もございますので予めご了承下さいませ。
※駐車場・駐輪場・バイク置場の空き状況についてはお問い合わせ下さい。
※ペット飼育やSOHO利用・楽器使用の可否に関しては、建物の管理規約で可能になっていても、お部屋の所有者様によって禁止の場合もございますので御注意下さい。
詳細はメールやお電話にてスタッフまでご相談下さい。シーネクス本駒込の周辺地図
似た条件の物件
最近見た物件
















