コアマンションフリージオ上野
♥お気に入りコアマンションフリージオ上野
♥お気に入り
コアマンションフリージオ上野 11階
| 賃料 | 要問合せ(※) | 管理費 | |
|---|---|---|---|
| 敷金 | 1ヶ月 | 礼金 | 1ヶ月 |
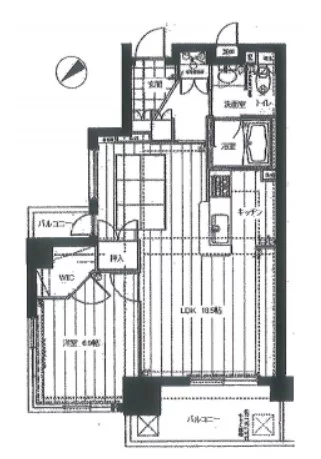
| 間取り | 1LDK | 面積 | 58.32㎡ |
| 階数 | 11階 | 状態 | 要問合せ(※) |
| 入居 | 相談 | 更新料 | 新賃料の1.5ヶ月分 |
| 諸費用 | 取引態様 | 媒介 | |
| 設備 | オートロック、法人契約相談可、宅配BOX、光ファイバー、インターネット対応、専用ゴミ置場、防犯カメラ、TVモニター付インターホン、分譲賃貸、エレベーター、2階以上、10階以上、二面採光、コンロ二口以上、ガスキッチン、システムキッチン、ウォークインクローゼット、エアコン、フローリング、独立洗面台、追い焚き機能、ウォシュレット、バストイレ別、室内洗濯機置場、収納、角部屋、礼金1以下 | ||
物件概要
| 物件名 | コアマンションフリージオ上野 | ||
|---|---|---|---|
| 所在地 | 東京都台東区下谷1-10-5 | ||
| 最寄駅 |
JR山手線 上野駅 徒歩8分 東京メトロ日比谷線 入谷駅 徒歩2分 |
||
| 学区 | 構造 | SRC | |
| 階数 | 地上13階建て | 築年月 | 2004年11月 |
| 駐車場 | |||
| 備考 | 詳細閲覧ありがとうございます。最新の空室の確認、内覧のご予約はメール・電話にてお問い合わせください。 文京区の賃貸マンション・賃貸アパートはベステックスにおまかせください! | ||
| 問合番号 | 489859 | ||
| 更新日 | 2022/10/28 | ||
このお部屋について
11階部分、58.32㎡の1LDKタイプのお部屋のご紹介です!
リビングダイニングは約18.5帖と広々としております!
角部屋の特性を生かした2面採光となっておりますので、通気性と解放感の両立されたお部屋となっております。
人気のカウンターキッチンを採用しており、キッチンからリビングの様子も伺えます♪
キッチンも広いのでキッチン内での立ち回りも楽々♪
ガス3口のシステムキッチンは幅も広く、浄水器も完備されており料理も快適です!
約6.9帖の洋室は人気のウォークインクローゼットも完備されておりますので、荷物の置き場に困ることなく、広々とお使いになれます!
水回りも設備が充実しております!
浴室には、乾燥機が付いていますので、梅雨や雨の日が続いても洗濯物を貯めることなく乾かすことができます!カビの防止にもなる優れものです♪
家計にやさしい追い炊き機能も完備!浴室には窓もございますので、快適にお使い頂けます!
是非一度【コアマンションフリージオ上野】をご覧ください!
リビングダイニングは約18.5帖と広々としております!
角部屋の特性を生かした2面採光となっておりますので、通気性と解放感の両立されたお部屋となっております。
人気のカウンターキッチンを採用しており、キッチンからリビングの様子も伺えます♪
キッチンも広いのでキッチン内での立ち回りも楽々♪
ガス3口のシステムキッチンは幅も広く、浄水器も完備されており料理も快適です!
約6.9帖の洋室は人気のウォークインクローゼットも完備されておりますので、荷物の置き場に困ることなく、広々とお使いになれます!
水回りも設備が充実しております!
浴室には、乾燥機が付いていますので、梅雨や雨の日が続いても洗濯物を貯めることなく乾かすことができます!カビの防止にもなる優れものです♪
家計にやさしい追い炊き機能も完備!浴室には窓もございますので、快適にお使い頂けます!
是非一度【コアマンションフリージオ上野】をご覧ください!
掲載情報について
※随時更新を心がけておりますが、掲載している物件が万が一成約している場合もございますので予めご了承下さいませ。
※駐車場・駐輪場・バイク置場の空き状況についてはお問い合わせ下さい。
※ペット飼育やSOHO利用・楽器使用の可否に関しては、建物の管理規約で可能になっていても、お部屋の所有者様によって禁止の場合もございますので御注意下さい。
詳細はメールやお電話にてスタッフまでご相談下さい。
※駐車場・駐輪場・バイク置場の空き状況についてはお問い合わせ下さい。
※ペット飼育やSOHO利用・楽器使用の可否に関しては、建物の管理規約で可能になっていても、お部屋の所有者様によって禁止の場合もございますので御注意下さい。
詳細はメールやお電話にてスタッフまでご相談下さい。
