レジディア千駄木 ~谷根千エリアマンション♪~
♥お気に入りレジディア千駄木 ~谷根千エリアマンション♪~
♥お気に入り






























レジディア千駄木 5階
賃料 要問合せ(※) 管理費 敷金 1ヶ月 礼金 0ヶ月 間取り 2LDK 面積 57.92㎡ 階数 5階 状態 要問合せ(※) 入居 相談 更新料 新賃料の一ヵ月分 諸費用 取引態様 媒介 設備 オートロック、バイク置場有、法人契約相談可、駐車場有、駐輪場有、宅配BOX、コンビニ近、光ファイバー、インターネット対応、専用ゴミ置場、防犯カメラ、TVモニター付インターホン、東京大学徒歩圏、東京大学自転車圏、礼金なし、エレベーター、2階以上、二面採光、コンロ二口以上、ガスキッチン、システムキッチン、ウォークインクローゼット、エアコン、フローリング、独立洗面台、浴室乾燥、ウォシュレット、バストイレ別、室内洗濯機置場、収納、角部屋、礼金1以下、2人入居可 物件概要
物件名 レジディア千駄木 所在地 東京都台東区谷中3-7-9 最寄駅 東京メトロ千代田線 千駄木駅 徒歩3分
JR山手線 日暮里駅 徒歩8分
東京メトロ南北線 本駒込駅 徒歩15分
学区 構造 RC 階数 地上6階建て 築年月 2017年10月 駐車場 駐車場有(月額30,000円:税別)、駐輪場・バイク置場有 備考 詳細閲覧ありがとうございます。最新の空室の確認、内覧のご予約はメール・電話にてお問い合わせください。 文京区の賃貸マンション・賃貸アパートはベステックスにおまかせください! 問合番号 158984 更新日 2022/10/27 このお部屋について
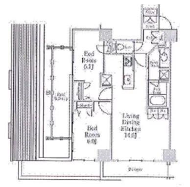
【レジディア千駄木】の5階、57.92㎡の2LDKタイプのお部屋のご紹介です。
約14.6帖のリビングダイニングは収納も備えた広々としたお部屋!
お食事の場としてもご家族の団欒の場としてもご活用いただけます!
キッチンには3口ガスコンロが備え付けられたシステムキッチンを採用しているので効率よく調理が可能!
居室については2部屋の洋室が用意されております。広さは約5帖と約6帖となっています。両部屋ともクローゼット完備で、荷物に場所を取られることなく広々とお使い頂けます!
~気になる水周り~
浴室とトイレの独立設計で何かを気にすることなくお風呂トイレに入ることができます!
浴室の前には脱衣所があり、独立洗面台と室内洗濯機置場がございます。
また、人気設備の独立洗面台も完備!
浴室には追い炊き、浴室乾燥機がございますので、長湯をされる際や短時間で洗濯物を乾かしたい際にも問題ありません。
インターネットWiFi使用料無料の嬉しい環境!
ぜひお問合せ下さい!掲載情報について
※随時更新を心がけておりますが、掲載している物件が万が一成約している場合もございますので予めご了承下さいませ。
※駐車場・駐輪場・バイク置場の空き状況についてはお問い合わせ下さい。
※ペット飼育やSOHO利用・楽器使用の可否に関しては、建物の管理規約で可能になっていても、お部屋の所有者様によって禁止の場合もございますので御注意下さい。
詳細はメールやお電話にてスタッフまでご相談下さい。レジディア千駄木の周辺地図
最近見た物件
































