アトラス本郷赤門前 ~東大隣接の高級マンション~
♥お気に入りアトラス本郷赤門前 ~東大隣接の高級マンション~
♥お気に入り










アトラス本郷赤門前 3階
賃料 要問合せ(※) 管理費 敷金 1ヶ月 礼金 1ヶ月 間取り 1K 面積 28.57㎡ 階数 3階 状態 要問合せ(※) 入居 9月末退去予定 更新料 1ヶ月分 諸費用 取引態様 媒介 設備 オートロック、法人契約相談可、宅配BOX、コンビニ近、BS・CS、CATV、光ファイバー、インターネット対応、専用ゴミ置場、防犯カメラ、TVモニター付インターホン、分譲賃貸、東京大学徒歩圏、エレベーター、2階以上、コンロ二口以上、ガスキッチン、システムキッチン、ウォークインクローゼット、エアコン、フローリング、独立洗面台、浴室乾燥、ウォシュレット、バストイレ別、室内洗濯機置場、収納、角部屋 物件概要
物件名 アトラス本郷赤門前 所在地 東京都文京区本郷4丁目1-8 最寄駅 都営大江戸線 本郷三丁目駅 徒歩2分
東京メトロ丸ノ内線 本郷三丁目駅 徒歩3分
都営三田線 春日駅 徒歩10分
学区 構造 RC 階数 地上11階建て 築年月 2011年03月 駐車場 無 備考 文京区本郷4丁目の【アトラス本郷赤門前】賃貸マンション情報です。THETAあり。 詳細閲覧ありがとうございます。最新の空室の確認、内覧のご予約はメール・電話にてお問い合わせください。 文京区の賃貸マンション・賃貸アパートはベステックスにおまかせください! 問合番号 158986 更新日 2022/08/10 このお部屋について
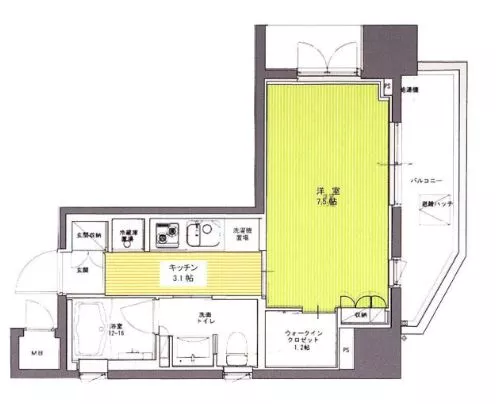
3階、28.57㎡の1Kタイプの角部屋のお部屋のご紹介です。
築浅分譲賃貸ならではの充実した内容になっております。
7.5帖の居室は、見た目以上に広く余裕を持ってご利用頂けます。
なんと言っても1Kタイプでは滅多に無いウォークインクローゼット完備!
大容量の収納は物を1箇所にまとめられて大人気!
2面採光のため、明るく、通気性に優れたお部屋でもあります。
水回りはハイグレードな設備となっており、
洗面所にはウォシュレット付きのトイレと独立洗面台完備でスタイリッシュかつコンパクトな空間となっております。
浴室に付いている浴室換気乾燥機は悪天候時も乾燥が容易になり、常に浴室を清潔な状態に保ってくれる便りになる味方です。
白を基調とした清潔感溢れる室内は、家具やカーテンの色も合わせやすく女性の方にもオススメです!
一つ一つの設備のスペースがしっかり確保されており、余裕を持ってお過ごし頂けます。
分譲ならではの高級仕様マンション【アトラス本郷赤門前】
お気軽にお問い合わせください♪
※写真は同物件別部屋となります。掲載情報について
※随時更新を心がけておりますが、掲載している物件が万が一成約している場合もございますので予めご了承下さいませ。
※駐車場・駐輪場・バイク置場の空き状況についてはお問い合わせ下さい。
※ペット飼育やSOHO利用・楽器使用の可否に関しては、建物の管理規約で可能になっていても、お部屋の所有者様によって禁止の場合もございますので御注意下さい。
詳細はメールやお電話にてスタッフまでご相談下さい。アトラス本郷赤門前の周辺地図
最近見た物件













