シーフォルム上野アジールコート
♥お気に入りシーフォルム上野アジールコート
♥お気に入り

















シーフォルム上野アジールコート 3階
賃料 要問合せ(※) 管理費 敷金 1ヶ月 礼金 1ヶ月 間取り 1LDK 面積 41.42㎡ 階数 3階 状態 要問合せ(※) 入居 即入居 更新料 新賃料の1ヶ月分 諸費用 取引態様 媒介 設備 新築、オートロック、バイク置場有、駐輪場有、宅配BOX、コンビニ近、インターネット対応、専用ゴミ置場、防犯カメラ、TVモニター付インターホン、分譲賃貸、エレベーター、2階以上、二面採光、カウンターキッチン、コンロ二口以上、ガスキッチン、システムキッチン、ウォークインクローゼット、エアコン、フローリング、独立洗面台、追い焚き機能、浴室乾燥、ウォシュレット、24時間換気システム、バストイレ別、室内洗濯機置場、収納、角部屋、礼金1以下、2人入居可、保証会社利用、法人契約相談可 物件概要
物件名 シーフォルム上野アジールコート 所在地 東京都台東区東上野4-20-9 最寄駅 JR山手線 上野駅 徒歩5分
東京メトロ日比谷線 上野駅 徒歩7分
東京メトロ銀座線 稲荷町駅 徒歩7分
学区 構造 RC 階数 地上9階建て 築年月 2017年09月 駐車場 備考 ※THETAあり。THETAおよび室内画像のすべては同タイプの別室の画像です。 詳細閲覧ありがとうございます。最新の空室の確認、内覧のご予約はメール・電話にてお問い合わせください。 文京区の賃貸マンション・賃貸アパートはベステックスにおまかせください! 問合番号 219301 更新日 2017/10/30 このお部屋について
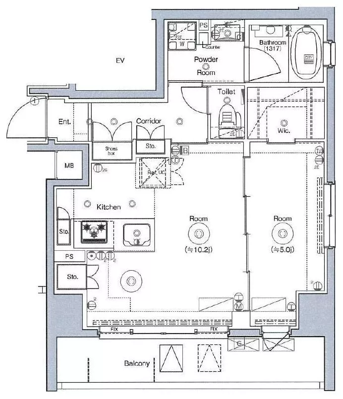
3階部分角部屋、1LDKタイプのお部屋をご紹介します。
41.42㎡、二面採光で通風良好!
LDKは約10.0帖、隣接した洋室は約5.0帖。LDKと洋室は引き戸で仕切られているので、繋げて広々とした空間としても使用可能です!
LDKは窓も大きく開放的!人気のカウンターキッチンを採用しており、キッチンには冷蔵庫以外に食器棚などを置ける余裕も御座います。
システムキッチンはグリル付きガス3口コンロで、お料理も捗ります!収納も十分に備わっています。
洋室は二面採光になっており、大きなウォークインクローゼットが付いているので収納豊富!荷物の多い方でも安心♪
玄関から廊下にかけては大きめのシューズボックスと物入があり、靴の収納にも困りません。
廊下の突き当りには水まわりが御座います。
トイレには温水洗浄便座と吊戸棚の付いた、快適で便利な仕様!広々としたパウダールームには三面鏡付きの独立洗面台を完備!脱衣所としても十分な広さです♪
浴室は1317サイズのユニットバスで、浴室乾燥機・追い焚き機能も完備した充実仕様!窓付きなので換気も楽々♪
快適な生活を支えるハイグレード仕様のお部屋、是非お問い合わせください!掲載情報について
※随時更新を心がけておりますが、掲載している物件が万が一成約している場合もございますので予めご了承下さいませ。
※駐車場・駐輪場・バイク置場の空き状況についてはお問い合わせ下さい。
※ペット飼育やSOHO利用・楽器使用の可否に関しては、建物の管理規約で可能になっていても、お部屋の所有者様によって禁止の場合もございますので御注意下さい。
詳細はメールやお電話にてスタッフまでご相談下さい。シーフォルム上野アジールコートの周辺地図
似た条件の物件
最近見た物件

















