ザ・パークハビオ根岸三丁目
♥お気に入りザ・パークハビオ根岸三丁目
♥お気に入り
























ザ・パークハビオ根岸三丁目 3階
賃料 要問合せ(※) 管理費 敷金 1ヶ月 ペット飼育・SOHO使用時1ヶ月追加 礼金 0ヶ月 間取り 1LDK 面積 43.85㎡ 階数 3階 状態 要問合せ(※) 入居 即入居 更新料 新賃料の1ヶ月分 諸費用 取引態様 媒介 設備 新築、オートロック、バイク置場有、駐車場有、駐輪場有、宅配BOX、コンビニ近、BS・CS、光ファイバー、インターネット対応、専用ゴミ置場、防犯カメラ、TVモニター付インターホン、礼金なし、ペット可、エレベーター、2階以上、二面採光、コンロ二口以上、ガスキッチン、システムキッチン、ウォークインクローゼット、エアコン、フローリング、独立洗面台、追い焚き機能、浴室乾燥、ウォシュレット、24時間換気システム、バストイレ別、室内洗濯機置場、収納、角部屋、フリーレント付き、2人入居可、保証会社利用、楽器相談可、SOHO可、法人契約相談可 物件概要
物件名 ザ・パークハビオ根岸三丁目 所在地 東京都台東区根岸3-13-7 最寄駅 東京メトロ日比谷線 入谷駅 徒歩5分
JR山手線 鶯谷駅 徒歩7分
JR京浜東北線 鶯谷駅 徒歩7分
学区 構造 RC 階数 地上8階建て 築年月 2017年07月 駐車場 備考 ※THETAあり。 詳細閲覧ありがとうございます。最新の空室の確認、内覧のご予約はメール・電話にてお問い合わせください。 文京区の賃貸マンション・賃貸アパートはベステックスにおまかせください! 問合番号 612301 更新日 2017/10/30 このお部屋について
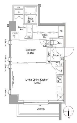
3階部分、43.85㎡の1LDKタイプです。
北東角部屋、二面採光!
玄関正面には大きなシューズクローゼットがあり、カップルやご夫婦でも靴の収納については困りません!
また、玄関横にはトイレがあり、スタイリッシュなタンクレストイレで、温水洗浄機能付き。手洗い器や吊戸棚なども備わっているので便利♪
LDKは12.0帖で広々としており、隣の洋室との間仕切りを開ければ、より広々とした空間としても使うことが出来ます!
キッチンはグリル付きガスコンロ3口のシステムキッチンで、収納も豊富で使いやすい仕様♪お料理もはかどります!
洋室は5.0帖で、柱が出ていないのでベッドも配置しやすくなっています。
洋室の先には洗面所と浴室があり、洗面所には大きな独立洗面台と洗濯機置き場付き。広さにも余裕があり、脱衣スペースとしても使いやすいです♪
浴室はゆったり1216サイズ、追い焚き機能と浴室換気乾燥機付きのユニットバスです!
洋室の大型ウォークインクローゼットと物入、リビング収納、洗面所のリネン庫など、収納が各所に豊富に備わった嬉しい仕様♪
ハイグレードな仕様・設備で快適な生活を!
是非お問い合わせください!掲載情報について
※随時更新を心がけておりますが、掲載している物件が万が一成約している場合もございますので予めご了承下さいませ。
※駐車場・駐輪場・バイク置場の空き状況についてはお問い合わせ下さい。
※ペット飼育やSOHO利用・楽器使用の可否に関しては、建物の管理規約で可能になっていても、お部屋の所有者様によって禁止の場合もございますので御注意下さい。
詳細はメールやお電話にてスタッフまでご相談下さい。ザ・パークハビオ根岸三丁目の周辺地図
似た条件の物件
最近見た物件
























