KukaiTerrace水道橋 ~デザイナーズマンション~
♥お気に入りKukaiTerrace水道橋 ~デザイナーズマンション~
♥お気に入り
KukaiTerrace水道橋 3階
| 賃料 | 要問合せ(※) | 管理費 | |
|---|---|---|---|
| 敷金 | 1ヶ月 | 礼金 | 0ヶ月 |
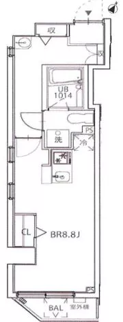
| 間取り | 1R | 面積 | 25.45㎡ |
| 階数 | 3階 | 状態 | 要問合せ(※) |
| 入居 | 更新料 | ||
| 諸費用 | 取引態様 | 媒介 | |
| 設備 | デザイナーズ、オートロック、駐車場有、インターネット対応、専用ゴミ置場、防犯カメラ、TVモニター付インターホン、ペット可、エレベーター、コンロ二口以上、システムキッチン、エアコン、フローリング、バストイレ別、室内洗濯機置場、収納、法人契約相談可 | ||
物件概要
| 物件名 | KukaiTerrace水道橋 | ||
|---|---|---|---|
| 所在地 | 東京都千代田区三崎町3-3-5 | ||
| 最寄駅 |
JR中央・総武線 水道橋駅 徒歩4分 都営新宿線 九段下駅 徒歩7分 都営新宿線 神保町駅 徒歩9分 |
||
| 学区 | 構造 | RC | |
| 階数 | 地上8階建て | 築年月 | 2014年10月 |
| 駐車場 | |||
| 備考 | 詳細閲覧ありがとうございます。最新の空室の確認、内覧のご予約はメール・電話にてお問い合わせください。 文京区の賃貸マンション・賃貸アパートはベステックスにおまかせください! | ||
| 問合番号 | 492251 | ||
| 更新日 | 2017/07/16 | ||
このお部屋について
【KukaiTerrace水道橋】の3階部分をご紹介いたします。
専有面積は25.45㎡、1Kの間取りのお部屋です。
洗練された室内空間が魅力的です♪
リビングは8.8帖、バルコニーもついており、布団や洗濯物を干すことができます。南向きのお部屋です。
クローゼットもございますので、収納ばっちり☆
キッチンは、カウンタータイプのシステムキッチンでオシャレ!さすがデザイナーズ♪2口ガスコンロつきシステムキッチンとシンクがございます☆お料理好きには嬉しい仕様です。冷蔵庫置き場もキッチンにあり、無駄のない導線が確保されております。
バストイレ別で快適。トイレはもちろん温水洗浄便座つきです。室内洗濯機置き場もございますので、時間帯や天候を気にせず、洗濯機をまわすことができます。
クローゼットの他に収納棚も2箇所ございます☆
テレビモニターつきインターホン完備で、相手の顔を確認してから玄関を開けることができます。
専有面積は25.45㎡、1Kの間取りのお部屋です。
洗練された室内空間が魅力的です♪
リビングは8.8帖、バルコニーもついており、布団や洗濯物を干すことができます。南向きのお部屋です。
クローゼットもございますので、収納ばっちり☆
キッチンは、カウンタータイプのシステムキッチンでオシャレ!さすがデザイナーズ♪2口ガスコンロつきシステムキッチンとシンクがございます☆お料理好きには嬉しい仕様です。冷蔵庫置き場もキッチンにあり、無駄のない導線が確保されております。
バストイレ別で快適。トイレはもちろん温水洗浄便座つきです。室内洗濯機置き場もございますので、時間帯や天候を気にせず、洗濯機をまわすことができます。
クローゼットの他に収納棚も2箇所ございます☆
テレビモニターつきインターホン完備で、相手の顔を確認してから玄関を開けることができます。
掲載情報について
※随時更新を心がけておりますが、掲載している物件が万が一成約している場合もございますので予めご了承下さいませ。
※駐車場・駐輪場・バイク置場の空き状況についてはお問い合わせ下さい。
※ペット飼育やSOHO利用・楽器使用の可否に関しては、建物の管理規約で可能になっていても、お部屋の所有者様によって禁止の場合もございますので御注意下さい。
詳細はメールやお電話にてスタッフまでご相談下さい。
※駐車場・駐輪場・バイク置場の空き状況についてはお問い合わせ下さい。
※ペット飼育やSOHO利用・楽器使用の可否に関しては、建物の管理規約で可能になっていても、お部屋の所有者様によって禁止の場合もございますので御注意下さい。
詳細はメールやお電話にてスタッフまでご相談下さい。


