グラントレゾール浅草
♥お気に入りグラントレゾール浅草
♥お気に入り










グラントレゾール浅草 4階
賃料 要問合せ(※) 管理費 敷金 1ヶ月 礼金 1ヶ月 間取り 2DK 面積 50.05㎡ 階数 4階 状態 要問合せ(※) 入居 相談 更新料 新賃料の1.5ヵ月分 諸費用 取引態様 媒介 設備 バイク置場有、法人契約相談可、宅配BOX、コンビニ近、BS・CS、光ファイバー、インターネット対応、専用ゴミ置場、防犯カメラ、TVモニター付インターホン、ペット可、エレベーター 物件概要
物件名 グラントレゾール浅草 所在地 東京都台東区浅草5-37-5 最寄駅 つくばエクスプレス 浅草駅 徒歩10分
東京メトロ日比谷線 入谷駅 徒歩14分
学区 構造 RC 階数 地上10階建て 築年月 2011年02月 駐車場 備考 THETAあり。 詳細閲覧ありがとうございます。最新の空室の確認、内覧のご予約はメール・電話にてお問い合わせください。 文京区の賃貸マンション・賃貸アパートはベステックスにおまかせください! 問合番号 50416 更新日 2022/10/14 このお部屋について
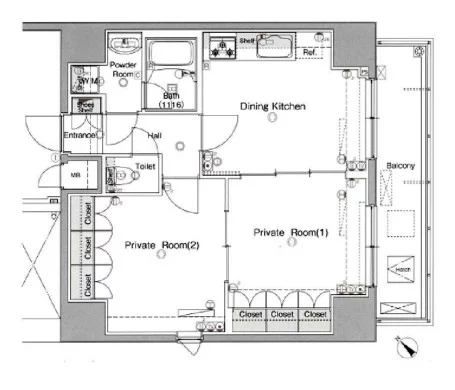
台東区浅草5丁目にございます物件【グラントレゾール浅草】10階建ての4階部分、50.05㎡の2DKタイプのご紹介です。セキュリティ設備の充実した築浅マンションとなっております!
DKは、広々とした約8.2帖!
梁の少ない綺麗な間取りとなっておりますので。家具のレイアウトなどがし易い間取りとなっております。
2部屋ある居室は、約7帖と約6帖!
クローゼットも完備されておりますので、荷物などに部屋の場所を取られることなくお部屋本来の広さをご活用いただけます。
キッチンは二口ガスコンロが完備されたシステムキッチンとなっておりますので、不自由なくお料理をお楽しみいただけます。
水回りはバス、トイレ、洗面台がそれぞれ独立した造りになっております!
浴室には、乾燥機が付いていますので、梅雨や雨の日が続いても洗濯物を貯めることなく乾かすことができます!カビの防止にもなる優れものです♪
洗面台も独立していますので、忙しい朝の準備などもスムーズ行えます!
是非一度【グラントレゾール浅草】をご覧ください!掲載情報について
※随時更新を心がけておりますが、掲載している物件が万が一成約している場合もございますので予めご了承下さいませ。
※駐車場・駐輪場・バイク置場の空き状況についてはお問い合わせ下さい。
※ペット飼育やSOHO利用・楽器使用の可否に関しては、建物の管理規約で可能になっていても、お部屋の所有者様によって禁止の場合もございますので御注意下さい。
詳細はメールやお電話にてスタッフまでご相談下さい。グラントレゾール浅草の周辺地図
似た条件の物件
最近見た物件










