ADONIS(アドニス)~全部屋広々LDKタイプ以上の高級賃貸マンション~
♥お気に入りADONIS(アドニス)~全部屋広々LDKタイプ以上の高級賃貸マンション~
♥お気に入り










ADONIS(アドニス) 6階
賃料 要問合せ(※) 管理費 敷金 1ヶ月 礼金 1ヶ月 間取り 2LDK 面積 51.81㎡ 階数 6階 状態 要問合せ(※) 入居 相談 更新料 新賃料の1ヶ月分 諸費用 取引態様 媒介 設備 24時間受付管理、オートロック、駐輪場有、宅配BOX、コンビニ近、光ファイバー、インターネット対応、専用ゴミ置場、防犯カメラ、TVモニター付インターホン、東京大学徒歩圏、エレベーター、本郷小学校エリア、2階以上、二面採光、カウンターキッチン、コンロ二口以上、IHキッチン、システムキッチン、エアコン、フローリング、独立洗面台、追い焚き機能、浴室乾燥、ウォシュレット、バストイレ別、室内洗濯機置場、収納、角部屋、礼金1以下、2人入居可、法人契約相談可 物件概要
物件名 ADONIS(アドニス) 所在地 東京都文京区本郷2-30-15 最寄駅 東京メトロ丸ノ内線 本郷三丁目駅 徒歩3分
都営大江戸線 本郷三丁目駅 徒歩3分
都営三田線 水道橋駅 徒歩9分
学区 本郷小学校 構造 RC 階数 地上8階建て 築年月 2015年03月 駐車場 無 備考 詳細閲覧ありがとうございます。最新の空室の確認、内覧のご予約はメール・電話にてお問い合わせください。 文京区の賃貸マンション・賃貸アパートはベステックスにおまかせください! 問合番号 385746 更新日 2019/10/05 このお部屋について
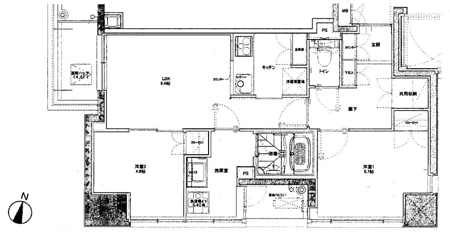
6階部分、2LDKタイプのご紹介です。51.81㎡、南西角部屋!
お部屋は振り分けタイプの間取りで、使いやすさが人気です!
LDKは9.4帖あり、キッチンにはカウンターキッチンを採用。キッチンスペースには食器棚も備え付けられており、食器類の収納には困りません♪
コンロはIH3口で、お料理後のお掃除も簡単です!
洋室はそれぞれ5.7帖と4.6帖。居室はLDK含め全面フローリング貼り!
洋室2部屋ともにクローゼットも付いています。
収納については、居室以外にも廊下に物入れが御座います。
水まわりは各種ゆとりを持った造りになっており、トイレ・洗面所・浴室はもちろん全て独立!
温水洗浄機能付きのトイレは快適で清潔♪
広々とした洗面室には大きめの独立洗面化粧台があり、脱衣所としての広さも十分!
浴室はファミリーには欠かせない追い焚き機能や、浴室乾燥機も完備!雨の日でも部屋干しが簡単♪
学区の小学校までも、物件目の前の道路を真っ直ぐ一本!
一方通行の道路なので、車通りも多くなく安心です♪
好立地の築浅マンション、是非お問い合わせください!
※写真は同マンション内別部屋のものになります。掲載情報について
※随時更新を心がけておりますが、掲載している物件が万が一成約している場合もございますので予めご了承下さいませ。
※駐車場・駐輪場・バイク置場の空き状況についてはお問い合わせ下さい。
※ペット飼育やSOHO利用・楽器使用の可否に関しては、建物の管理規約で可能になっていても、お部屋の所有者様によって禁止の場合もございますので御注意下さい。
詳細はメールやお電話にてスタッフまでご相談下さい。ADONIS(アドニス)の周辺地図
似た条件の物件
最近見た物件
















