ザ・パークハビオ上野レジデンス〜ペット飼育・楽器演奏相談可!〜
♥お気に入りザ・パークハビオ上野レジデンス〜ペット飼育・楽器演奏相談可!〜
♥お気に入り
ザ・パークハビオ上野レジデンス 6階
| 賃料 | 要問合せ(※) | 管理費 | |
|---|---|---|---|
| 敷金 | 1ヶ月 ペット飼育・SOHO使用時1ヶ月追加 | 礼金 | 0ヶ月 キャンペーン中のみ |
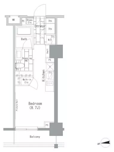
| 間取り | 1R | 面積 | 25.58㎡ |
| 階数 | 6階 | 状態 | 要問合せ(※) |
| 入居 | 即入居 | 更新料 | 新賃料の1ヶ月分 |
| 諸費用 | 取引態様 | 媒介 | |
| 設備 | オートロック、バイク置場有、駐車場有、駐輪場有、宅配BOX、コンビニ近、BS・CS、CATV、光ファイバー、インターネット対応、専用ゴミ置場、防犯カメラ、TVモニター付インターホン、礼金なし、ペット可、エレベーター、2階以上、コンロ二口以上、ガスキッチン、システムキッチン、ウォークインクローゼット、エアコン、フローリング、独立洗面台、追い焚き機能、浴室乾燥、ウォシュレット、24時間換気システム、バストイレ別、室内洗濯機置場、収納、フリーレント付き、保証会社利用、楽器相談可、SOHO可、法人契約相談可 | ||
物件概要
| 物件名 | ザ・パークハビオ上野レジデンス | ||
|---|---|---|---|
| 所在地 | 東京都台東区上野3-10-11 | ||
| 最寄駅 |
JR山手線 御徒町駅 徒歩2分 JR京浜東北線 御徒町駅 徒歩2分 東京メトロ日比谷線 仲御徒町駅 徒歩3分 |
||
| 学区 | 構造 | RC | |
| 階数 | 地上12階建て 地下1階 | 築年月 | 2015年12月 |
| 駐車場 | 要空き確認 | ||
| 備考 | ※礼金0ヶ月・フリーレント1ヶ月についてはキャンペーン中のみ。キャンペーンは予告なく変更・終了する場合がございます。予めご了承ください。 詳細閲覧ありがとうございます。最新の空室の確認、内覧のご予約はメール・電話にてお問い合わせください。 文京区の賃貸マンション・賃貸アパートはベステックスにおまかせください! | ||
| 問合番号 | 816606 | ||
| 更新日 | 2017/05/06 | ||
このお部屋について
☆礼金0ヶ月・フリーレント1ヶ月キャンペーン中☆
6階部分、ワンルームタイプのお部屋のご紹介です。
専有面積25.58㎡の広めのお部屋。
居室はフローリング貼りの洋室で約8.7帖。大きなウォークインクローゼットが付いているので収納は非常に豊富!
荷物の多い方や女性の方にも嬉しいです♪
もちろん、居室にはエアコンも設置済み!
玄関を入るとすぐ、シューズボックスと物入れがあり、その先には室内洗濯機置き場が御座います。
キッチンはガス2口のシステムキッチンで、お料理も快適!
キッチン自体にも収納スペースがあるので、食器類や調理器具もスッキリと収納可能です。
水まわりはもちろん、バス・トイレ別。
ドレッシングルームにはトイレと、人気の独立洗面台があり、トイレには温水洗浄機能付きで清潔♪
1216サイズのゆったりとしたユニットバスには浴室乾燥機と追焚機能まで揃っています!
ハイグレードな設備が揃った充実の物件。
是非お問い合わせください!
※キャンペーンは予告なく変更・終了する場合がございます。予めご了承ください。
6階部分、ワンルームタイプのお部屋のご紹介です。
専有面積25.58㎡の広めのお部屋。
居室はフローリング貼りの洋室で約8.7帖。大きなウォークインクローゼットが付いているので収納は非常に豊富!
荷物の多い方や女性の方にも嬉しいです♪
もちろん、居室にはエアコンも設置済み!
玄関を入るとすぐ、シューズボックスと物入れがあり、その先には室内洗濯機置き場が御座います。
キッチンはガス2口のシステムキッチンで、お料理も快適!
キッチン自体にも収納スペースがあるので、食器類や調理器具もスッキリと収納可能です。
水まわりはもちろん、バス・トイレ別。
ドレッシングルームにはトイレと、人気の独立洗面台があり、トイレには温水洗浄機能付きで清潔♪
1216サイズのゆったりとしたユニットバスには浴室乾燥機と追焚機能まで揃っています!
ハイグレードな設備が揃った充実の物件。
是非お問い合わせください!
※キャンペーンは予告なく変更・終了する場合がございます。予めご了承ください。
掲載情報について
※随時更新を心がけておりますが、掲載している物件が万が一成約している場合もございますので予めご了承下さいませ。
※駐車場・駐輪場・バイク置場の空き状況についてはお問い合わせ下さい。
※ペット飼育やSOHO利用・楽器使用の可否に関しては、建物の管理規約で可能になっていても、お部屋の所有者様によって禁止の場合もございますので御注意下さい。
詳細はメールやお電話にてスタッフまでご相談下さい。
※駐車場・駐輪場・バイク置場の空き状況についてはお問い合わせ下さい。
※ペット飼育やSOHO利用・楽器使用の可否に関しては、建物の管理規約で可能になっていても、お部屋の所有者様によって禁止の場合もございますので御注意下さい。
詳細はメールやお電話にてスタッフまでご相談下さい。


