ステージファースト新御徒町
♥お気に入りステージファースト新御徒町
♥お気に入り
ステージファースト新御徒町 8階
| 賃料 | 要問合せ(※) | 管理費 | |
|---|---|---|---|
| 敷金 | 1ヶ月 償却 | 礼金 | 1ヶ月 |
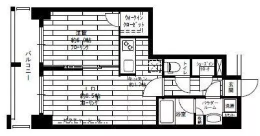
| 間取り | 1LDK | 面積 | 39.42㎡ |
| 階数 | 8階 | 状態 | 要問合せ(※) |
| 入居 | 相談 | 更新料 | 新賃料の1ヶ月分 |
| 諸費用 | 取引態様 | 媒介 | |
| 設備 | オートロック、駐輪場有、宅配BOX、コンビニ近、BS・CS、CATV、光ファイバー、インターネット対応、防犯カメラ、分譲賃貸、エレベーター、2階以上、コンロ二口以上、ガスキッチン、システムキッチン、ウォークインクローゼット、エアコン、フローリング、独立洗面台、浴室乾燥、ウォシュレット、バストイレ別、室内洗濯機置場、収納、2人入居可、法人契約相談可 | ||
物件概要
| 物件名 | ステージファースト新御徒町 | ||
|---|---|---|---|
| 所在地 | 東京都台東区鳥越1-7-2 | ||
| 最寄駅 |
都営大江戸線 上野御徒町駅 徒歩8分 JR中央・総武線 浅草橋駅 徒歩10分 都営浅草線 浅草橋駅 徒歩11分 |
||
| 学区 | 構造 | RC | |
| 階数 | 地上13階建て | 築年月 | 2010年02月 |
| 駐車場 | |||
| 備考 | 詳細閲覧ありがとうございます。最新の空室の確認、内覧のご予約はメール・電話にてお問い合わせください。 文京区の賃貸マンション・賃貸アパートはベステックスにおまかせください! | ||
| 問合番号 | 04544 | ||
| 更新日 | 2017/03/31 | ||
このお部屋について
台東区鳥越1丁目にある賃貸マンション【ステージファースト新御徒町】8階、1LDKのお部屋のご紹介です!
インターネット環境(光ファイバー)が整っており、無料でお使いいただけます。
洋室は約6帖の広さで、お掃除が簡単なフローリング素材になっております。
ウォークインクローゼットが御座いますので、荷物が多い方でもスッキリと収納可能。
無駄な梁や柱のないシンプルな間取りのため、ベッドやテレビなどの家具配置もイメージしやすく、自由なレイアウトを楽しむことが可能です。
リビングダイニングは約8.5帖の広さで、
こちらも無駄な梁や柱のないシンプルな造りなので、家具のレイアウトも自由に行なえます。
キッチンは2口ガスコンロが備わったシステムキッチンで、料理好きの方にもオススメのキッチンです。
水回りはバス・トイレが別々になっており、独立洗面台を備えた洗面所を完備。
浴室には天候や時間帯に関わらず洗濯物が干せる浴室乾燥機が、
トイレには温水洗浄便座が完備され、快適に過ごすことができます。
是非一度ご覧ください。
お問い合わせお待ちしております。
インターネット環境(光ファイバー)が整っており、無料でお使いいただけます。
洋室は約6帖の広さで、お掃除が簡単なフローリング素材になっております。
ウォークインクローゼットが御座いますので、荷物が多い方でもスッキリと収納可能。
無駄な梁や柱のないシンプルな間取りのため、ベッドやテレビなどの家具配置もイメージしやすく、自由なレイアウトを楽しむことが可能です。
リビングダイニングは約8.5帖の広さで、
こちらも無駄な梁や柱のないシンプルな造りなので、家具のレイアウトも自由に行なえます。
キッチンは2口ガスコンロが備わったシステムキッチンで、料理好きの方にもオススメのキッチンです。
水回りはバス・トイレが別々になっており、独立洗面台を備えた洗面所を完備。
浴室には天候や時間帯に関わらず洗濯物が干せる浴室乾燥機が、
トイレには温水洗浄便座が完備され、快適に過ごすことができます。
是非一度ご覧ください。
お問い合わせお待ちしております。
掲載情報について
※随時更新を心がけておりますが、掲載している物件が万が一成約している場合もございますので予めご了承下さいませ。
※駐車場・駐輪場・バイク置場の空き状況についてはお問い合わせ下さい。
※ペット飼育やSOHO利用・楽器使用の可否に関しては、建物の管理規約で可能になっていても、お部屋の所有者様によって禁止の場合もございますので御注意下さい。
詳細はメールやお電話にてスタッフまでご相談下さい。
※駐車場・駐輪場・バイク置場の空き状況についてはお問い合わせ下さい。
※ペット飼育やSOHO利用・楽器使用の可否に関しては、建物の管理規約で可能になっていても、お部屋の所有者様によって禁止の場合もございますので御注意下さい。
詳細はメールやお電話にてスタッフまでご相談下さい。
