レジディア文京音羽Ⅱ ~高級賃貸マンション~
♥お気に入りレジディア文京音羽Ⅱ ~高級賃貸マンション~
♥お気に入り










レジディア文京音羽Ⅱ 10階
賃料 要問合せ(※) 管理費 敷金 2ヶ月 ※保証会社利用時1ヶ月 礼金 1ヶ月 間取り 1LDK 面積 44.24㎡ 階数 10階 状態 要問合せ(※) 入居 相談 更新料 新賃料の1ヶ月分 諸費用 取引態様 媒介 設備 オートロック、駐車場有、駐輪場有、宅配BOX、コンビニ近、BS・CS、CATV、光ファイバー、インターネット対応、専用ゴミ置場、防犯カメラ、TVモニター付インターホン、分譲賃貸、礼金なし、エレベーター、青柳小学校エリア、10階以上、南向き、日当たり良好、コンロ二口以上、ガスキッチン、システムキッチン、エアコン、フローリング、独立洗面台、追い焚き機能、浴室乾燥、ウォシュレット、バストイレ別、室内洗濯機置場、収納、礼金1以下、2人入居可、法人契約相談可 物件概要
物件名 レジディア文京音羽Ⅱ 所在地 東京都文京区音羽2丁目11-5 最寄駅 東京メトロ有楽町線 護国寺駅 徒歩1分
東京メトロ丸ノ内線 茗荷谷駅 徒歩13分
学区 青柳小学校 構造 RC 階数 地上14階建て 築年月 2008年03月 駐車場 無 備考 詳細閲覧ありがとう御座います。内見ご希望の方はメール・電話どちらでも結構ですので御連絡頂ければいつでも対応させて頂きます。 詳細閲覧ありがとうございます。最新の空室の確認、内覧のご予約はメール・電話にてお問い合わせください。 文京区の賃貸マンション・賃貸アパートはベステックスにおまかせください! 問合番号 10879 更新日 2017/03/13 このお部屋について
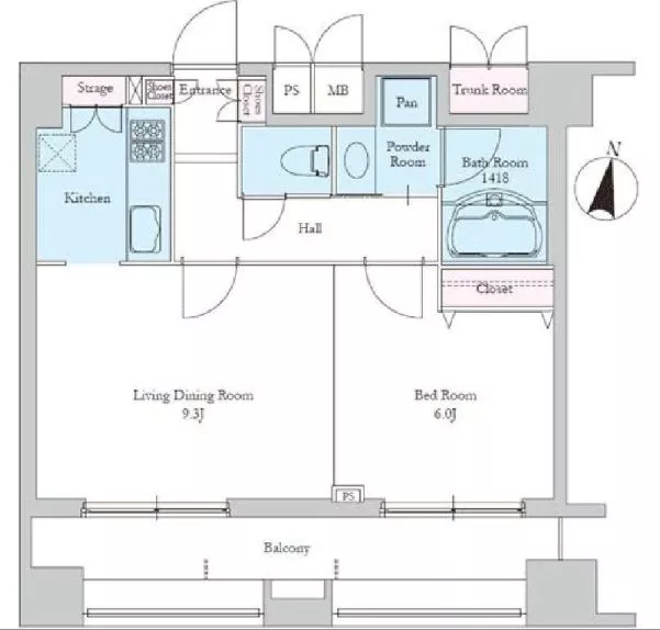
文京区音羽2丁目にある高級賃貸マンション『レジディア文京音羽Ⅱ』の10階、1LDKのお部屋のご紹介です。
居室は約6帖の洋室で大きめのクローゼットが備わっているため、衣類や家具家電の収納に活用することでお部屋を広く大きく使うことができます。
南向きの窓からは外の光を室内に取り込むことができるため、お部屋に明るい印象を与えます。
約9.3帖リビングダイニングは梁のないすっきりとした形をしており家具の配置もイメージしやすく使い勝手良好!
キッチンには4口ガスキッチンが備わったシステムキチンがあり、料理をするには十分なスペースがあるので快適に作業を行えます。
収納力もあり調理器具をたくさんお持ちの方でも安心してお使い頂けます。
バス・トイレは別々で独立空間が確保されております。
ウォシュレット、追い焚き機能など設備が充実!
洗濯機置き場と独立洗面台が備わったパウダールームは脱衣所としてご利用可能!
是非一度【レジディア文京音羽Ⅱ】ご覧下さい!
※室内写真は別室タイプになります。掲載情報について
※随時更新を心がけておりますが、掲載している物件が万が一成約している場合もございますので予めご了承下さいませ。
※駐車場・駐輪場・バイク置場の空き状況についてはお問い合わせ下さい。
※ペット飼育やSOHO利用・楽器使用の可否に関しては、建物の管理規約で可能になっていても、お部屋の所有者様によって禁止の場合もございますので御注意下さい。
詳細はメールやお電話にてスタッフまでご相談下さい。レジディア文京音羽Ⅱの周辺地図
似た条件の物件
最近見た物件

















