ヒューリックレジデンス茗荷谷
♥お気に入りヒューリックレジデンス茗荷谷
♥お気に入り










ヒューリックレジデンス茗荷谷 7階
賃料 要問合せ(※) 管理費 敷金 1ヶ月 礼金 1ヶ月 間取り 1LDK 面積 38.39㎡ 階数 7階 状態 要問合せ(※) 入居 要相談 更新料 定期借家3年:再契約相談可 諸費用 取引態様 媒介 設備 オートロック、法人契約相談可、駐輪場有、宅配BOX、コンビニ近、BS・CS、光ファイバー、インターネット対応、防犯カメラ、TVモニター付インターホン、礼金なし、窪町小学校エリア、2階以上、カウンターキッチン、コンロ二口以上、ガスキッチン、システムキッチン、エアコン、フローリング、独立洗面台、浴室乾燥、24時間換気システム、バストイレ別、室内洗濯機置場、洗濯機置場あり、収納、礼金1以下、フリーレント付き、2人入居可、保証会社利用
物件概要
物件名 ヒューリックレジデンス茗荷谷 所在地 東京都文京区小日向4丁目3-4 最寄駅 東京メトロ丸ノ内線 茗荷谷駅 徒歩7分
東京メトロ有楽町線 江戸川橋駅 徒歩12分
東京メトロ有楽町線 護国寺駅 徒歩12分
学区 窪町小学校 構造 RC 階数 地上7階建て 地下1階 築年月 2010年10月 駐車場 無 駐輪場有 備考 初回保証料:総賃料の40%・月額保証料:総賃料の1%・鍵交換費用:27,500円・退去時クリーニング費用:46,068円 詳細閲覧ありがとうございます。最新の空室の確認、内覧のご予約はメール・電話にてお問い合わせください。 文京区の賃貸マンション・賃貸アパートはベステックスにおまかせください! 問合番号 50416-705 更新日 2025/05/30 このお部屋について
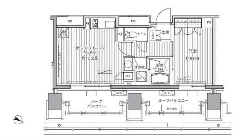
7階、38.39㎡の1LDKタイプお部屋のご紹介です。
~オススメポイント~
①広々10.2帖のLDK
②使いやすい2口コンロ付きシステムキッチン!
③人気のB・T別、独立洗面台完備!
賃貸マンション【ヒューリックレジデンス茗荷谷】お気軽にお問い合わせください♪
tel:03-3811-3221掲載情報について
※随時更新を心がけておりますが、掲載している物件が万が一成約している場合もございますので予めご了承下さいませ。
※駐車場・駐輪場・バイク置場の空き状況についてはお問い合わせ下さい。
※ペット飼育やSOHO利用・楽器使用の可否に関しては、建物の管理規約で可能になっていても、お部屋の所有者様によって禁止の場合もございますので御注意下さい。
詳細はメールやお電話にてスタッフまでご相談下さい。ヒューリックレジデンス茗荷谷の周辺地図
似た条件の物件
最近見た物件













リビング約10.2帖で目立った梁がなく使いやすい間取りとなっております。キッチンは2口ガスコンロで調理スペース・収納スペースも十分に確保されており、冷蔵庫・電子レンジもキッチンスペースに置けるので効率的にお料理を進めることができます。
居室は約5.6帖で完全セパレートとなっておりリモートワークなどがある方でも使いやすい間取りとなっております。
またリビング・居室に面したルーフバルコニーがあるので、解放感もございます。
気になった方は是非お問い合わせくださいませ。