レジディア文京千石 ~高級賃貸マンション~
♥お気に入りレジディア文京千石 ~高級賃貸マンション~
♥お気に入り










レジディア文京千石 6階
賃料 要問合せ(※) 管理費 敷金 2ヶ月 礼金 1ヶ月 間取り 1DK 面積 31.29㎡ 階数 6階 状態 要問合せ(※) 入居 相談 更新料 新賃料の1ヶ月分 諸費用 取引態様 媒介 設備 オートロック、駐輪場有、宅配BOX、コンビニ近、BS・CS、CATV、光ファイバー、インターネット対応、専用ゴミ置場、防犯カメラ、TVモニター付インターホン、分譲賃貸、エレベーター、駕籠町小学校エリア、10階以上、二面採光、コンロ二口以上、ガスキッチン、システムキッチン、エアコン、フローリング、独立洗面台、浴室乾燥、ウォシュレット、24時間換気システム、バストイレ別、室内洗濯機置場、洗濯機置場あり、収納、角部屋、礼金1以下、法人契約相談可 物件概要
物件名 レジディア文京千石 所在地 東京都文京区千石4丁目45-15 最寄駅 都営三田線 千石駅 徒歩3分
JR山手線 巣鴨駅 徒歩7分
学区 駕籠町小学校 構造 SRC 階数 地上12階建て 築年月 2003年02月 駐車場 無 備考 詳細閲覧ありがとうございます。最新の空室の確認、内覧のご予約はメール・電話にてお問い合わせください。 文京区の賃貸マンション・賃貸アパートはベステックスにおまかせください! 問合番号 50416 更新日 2016/11/25 このお部屋について
2003年2月築の鉄骨鉄筋コンクリート造地上12階建て高級賃貸マンション。
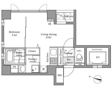
6階部分、角部屋。
31.29㎡、1DKタイプの大きな窓が特徴的で明るい角部屋のお部屋のご紹介です。
ダイニングキッチンでは食事をするスペースは確保されており、お料理好きには嬉しい2口のシステムガスキッチンが設置済み!
2面採光のため採光も豊富。
水まわりはバストイレ別は勿論、独立洗面台完備で脱衣スペースもしっかり設けられております。
トイレが離れた位置にあるので来客時にも困りません♪
浴室に付いている浴室換気乾燥機は悪天候時も乾燥が容易になり、常に浴室を清潔な状態に保ってくれる便りになる味方です。
追焚機能も付いており、シャワーだけでなくてたまにはお湯に浸かり疲れをとりたい・いつもあったかいお風呂に入りたいという方には嬉しい設備です。
相手が見えるTVモニター付きインターフォンに加え、オートロック完備で安心セキュリティ♪
住む人のことを考慮した設備充実の高級賃貸物件です。
レジディア文京千石を、ぜひお問い合わせ下さい!
※写真は同建物の別部屋です掲載情報について
※随時更新を心がけておりますが、掲載している物件が万が一成約している場合もございますので予めご了承下さいませ。
※駐車場・駐輪場・バイク置場の空き状況についてはお問い合わせ下さい。
※ペット飼育やSOHO利用・楽器使用の可否に関しては、建物の管理規約で可能になっていても、お部屋の所有者様によって禁止の場合もございますので御注意下さい。
詳細はメールやお電話にてスタッフまでご相談下さい。レジディア文京千石の周辺地図
似た条件の物件
最近見た物件















