プライムアーバン本駒込(旧名:アパートメンツ本駒込)
♥お気に入りプライムアーバン本駒込(旧名:アパートメンツ本駒込)
♥お気に入り
























プライムアーバン本駒込 14階
賃料 要問合せ(※) 管理費 敷金 1ヶ月 礼金 0ヶ月 キャンペーン期間中 間取り 1LDK 面積 59.70㎡ 階数 14階 状態 要問合せ(※) 入居 即入居可 更新料 新賃料の1ヵ月分 諸費用 取引態様 媒介 設備 デザイナーズ、オートロック、駐車場有、駐輪場有、宅配BOX、コンビニ近、BS・CS、光ファイバー、インターネット対応、専用ゴミ置場、防犯カメラ、TVモニター付インターホン、東京大学徒歩圏、東京大学自転車圏、礼金なし、エレベーター、駒本小学校エリア、10階以上、最上階、メゾネット、二面採光、コンロ二口以上、ガスキッチン、システムキッチン、エアコン、フローリング、独立洗面台、追い焚き機能、浴室乾燥、ウォシュレット、バストイレ別、室内洗濯機置場、収納、角部屋、2人入居可、保証会社利用、法人契約相談可 物件概要
物件名 プライムアーバン本駒込 所在地 東京都文京区本駒込1-7-14 最寄駅 東京メトロ南北線 本駒込駅 徒歩2分
都営三田線 白山駅 徒歩5分
学区 駒本小学校 構造 RC 階数 地上15階建て 地下1階 築年月 2007年02月 駐車場 有:月額賃料36,500円+税(要空き確認) 備考 THETAあり。 詳細閲覧ありがとうございます。最新の空室の確認、内覧のご予約はメール・電話にてお問い合わせください。 文京区の賃貸マンション・賃貸アパートはベステックスにおまかせください! 問合番号 06354 更新日 2016/10/18 このお部屋について
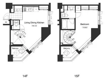
プライムアーバン本駒込の14階・15階部分のメゾネットタイプの1LDKのご紹介です。
59.70㎡で水周り、玄関周りのスペースが十分に取られた、ゆとりの設計です。
床は人気のオールフローリングになっているので、お掃除も手間が掛かりません!
約14.7帖のLDKは採光部が多く、明るく開放感のある造りで、家具の配置がしやすい間取り。
螺旋階段を上がると、約10.5帖の寝室となっており、収納が備えられ、荷物が多い人でも安心な収納量です!
荷物に邪魔されることなく、お部屋を自由に使うことが出来ます♪
寝室も2面採光となっており、風通しも良好です☆
~気になる水周り~
キッチンには2口ガスコンロを採用したシステムキッチンになっているので、手際よく調理が可能です!
料理が好きな人にオススメできる設備です!
もちろん、浴室とトイレは独立設計。
さらに独立洗面台が備え付けてあるので、朝の身だしなみチェックや、お化粧など様々な場面で使い勝手の良い人気の設備です!
是非、ご覧ください。掲載情報について
※随時更新を心がけておりますが、掲載している物件が万が一成約している場合もございますので予めご了承下さいませ。
※駐車場・駐輪場・バイク置場の空き状況についてはお問い合わせ下さい。
※ペット飼育やSOHO利用・楽器使用の可否に関しては、建物の管理規約で可能になっていても、お部屋の所有者様によって禁止の場合もございますので御注意下さい。
詳細はメールやお電話にてスタッフまでご相談下さい。プライムアーバン本駒込の周辺地図
似た条件の物件
最近見た物件






























