アドリーム文京動坂~分譲賃貸マンション~
♥お気に入りアドリーム文京動坂~分譲賃貸マンション~
♥お気に入り









アドリーム文京動坂 8階
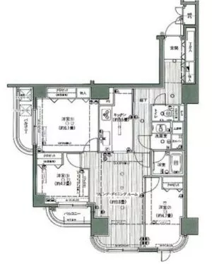
賃料 要問合せ(※) 管理費 敷金 1ヶ月 礼金 1ヶ月 間取り 3LDK 面積 70.09㎡ 階数 8階 状態 要問合せ(※) 入居 相談 更新料 新賃料の1ヵ月分 諸費用 取引態様 媒介 設備 オートロック、宅配BOX、コンビニ近、BS・CS、CATV、光ファイバー、インターネット対応、専用ゴミ置場、防犯カメラ、分譲賃貸、エレベーター、千駄木小学校エリア、2階以上、二面採光、コンロ二口以上、システムキッチン、ウォークインクローゼット、エアコン、フローリング、独立洗面台、追い焚き機能、浴室乾燥、ウォシュレット、バストイレ別、室内洗濯機置場、収納、角部屋、礼金1以下、2人入居可、法人契約相談可 物件概要
物件名 アドリーム文京動坂 所在地 東京都文京区千駄木4-13-6 最寄駅 JR山手線 田端駅 徒歩10分
JR山手線 西日暮里駅 徒歩12分
東京メトロ千代田線 千駄木駅 徒歩12分
学区 千駄木小学校 構造 SRC 階数 地上14階建て 築年月 1997年01月 駐車場 備考 【アドリーム文京動坂】の賃貸マンション情報♪ 詳細閲覧ありがとうございます。最新の空室の確認、内覧のご予約はメール・電話にてお問い合わせください。 文京区の賃貸マンション・賃貸アパートはベステックスにおまかせください! 問合番号 98791 更新日 2016/07/25 このお部屋について
鉄骨鉄筋コンクリート造地上14階建ての3階!
3LDKタイプで専有面積が70.09㎡と非常に広いお部屋になっています!
床は人気のオールフローリングになっているので、お掃除も手間が掛かりません!
リビングダイニングキッチンは約9.8帖の広さがありますのでTVやソファーなど寛ぎの空間を作ることも可能!
居室は洋室が3部屋御座います。約6.1帖と約4.7帖と約4.2帖の広さになっており、それぞれ収納も完備しておりますので、荷物が多い人でも安心な収納量!
その為、荷物に邪魔されることなくお部屋を自由に使うことが出来ます♪
~気になる水周り~
キッチンには3口コンロを採用したシステムキッチンになっているので、手際よく調理が可能です!
料理が好きな人にオススメできる設備ですし家族分の料理をするのにも頼もしい設備です♪
浴室とトイレの独立設計で来客時も気兼ねなくお風呂トイレに入ることができます!
さらに独立洗面台が備え付けてあるので、朝の身だしなみチェックや、お化粧など。様々な場面で活躍する人気の設備です!
アドリーム文京動坂を是非、ご覧ください。
※写真は同建物の別部屋です掲載情報について
※随時更新を心がけておりますが、掲載している物件が万が一成約している場合もございますので予めご了承下さいませ。
※駐車場・駐輪場・バイク置場の空き状況についてはお問い合わせ下さい。
※ペット飼育やSOHO利用・楽器使用の可否に関しては、建物の管理規約で可能になっていても、お部屋の所有者様によって禁止の場合もございますので御注意下さい。
詳細はメールやお電話にてスタッフまでご相談下さい。アドリーム文京動坂の周辺地図
似た条件の物件
最近見た物件











