フェニックス本郷東大前 ~高級分譲賃貸マンション~
♥お気に入りフェニックス本郷東大前 ~高級分譲賃貸マンション~
♥お気に入り

洋室

洋室

収納

リビング

リビング

セキュリティ

キッチン

トイレ

フェニックス本郷東大前 7階
賃料 要問合せ(※) 管理費 敷金 1ヶ月 (ペット飼育時敷金1ヶ月追加) 礼金 1ヶ月 間取り 1LDK 面積 38.39㎡ 階数 7階 状態 要問合せ(※) 入居 相談 更新料 新賃料の1か月分 諸費用 取引態様 媒介 設備 オートロック、法人契約相談可、駐輪場有、宅配BOX、CATV、光ファイバー、インターネット対応、専用ゴミ置場、分譲賃貸、東京大学徒歩圏、ペット可、エレベーター、湯島小学校エリア、2階以上、最上階、ルーフバルコニー、南向き、二面採光、日当たり良好、コンロ二口以上、ガスキッチン、システムキッチン、エアコン、フローリング、独立洗面台、追い焚き機能、浴室乾燥、ウォシュレット、バストイレ別、室内洗濯機置場、収納、角部屋、礼金1以下、2人入居可、保証会社利用 物件概要
物件名 フェニックス本郷東大前 所在地 東京都文京区湯島4丁目10-4 最寄駅 東京メトロ千代田線 湯島駅 徒歩7分
都営大江戸線 本郷三丁目駅 徒歩8分
東京メトロ銀座線 上野広小路駅 徒歩11分
学区 湯島小学校 構造 RC 階数 地上7階建て 築年月 2009年07月 駐車場 無 駐輪場有 備考 文京区湯島4丁目にある【フェニックス本郷東大前】賃貸マンション情報♪◆鍵交換費用:27,500円◆家財保険:1,835円/月◆初回保証料:総賃料50%、月額保証料:総賃料1%◆駐輪場:月額500円(契約時一括払い)◆ 詳細閲覧ありがとうございます。最新の空室の確認、内覧のご予約はメール・電話にてお問い合わせください。 文京区の賃貸マンション・賃貸アパートはベステックスにおまかせください! 問合番号 50007-703 更新日 2023/04/01 このお部屋について
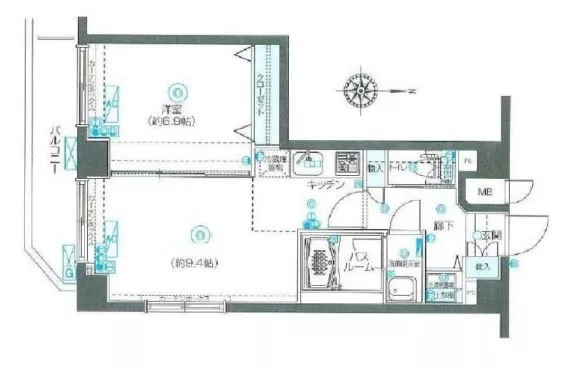
文京区湯島4丁目にある【フェニックス本郷東大前】の7階、最上階の1LDKタイプのお部屋のご紹介です♪
上階を気にかける必要がなく、ストレスフリーな暮らしが可能♪
南向きで日当たり良好♪
専有面積は38.39㎡で、居室・水周り共に余裕のある造り。
ペットと一緒に住めるお部屋になっております。
(ペット飼育時敷金1ヶ月追加)
居室は約6.9帖の洋室となっており、クローゼットは壁一面の広いタイプで収納力抜群!
ダイニングキッチンとの間の扉を空けて大きなワンルームとしても利用可能!
ダイニングキッチンは約9.4帖あり、料理に便利なガス2口キッチンになっております。収納面では、調理器具をたくさんお持ちでも十分に収まります。
料理好きの方にもオススメできるキッチン設備。
二面採光により明るく、通気性もバッチリ♪
バス・トイレは別々で、独立空間が確保されています。
浴室乾燥機は天候や時間帯を気にすることなく洗濯物を干すことができます。清潔感があり女性にもオススメ出来る内容です♪
追焚機能も完備!
お気軽にお問い合わせください♪
※写真は同物件の別部屋のものです。掲載情報について
※随時更新を心がけておりますが、掲載している物件が万が一成約している場合もございますので予めご了承下さいませ。
※駐車場・駐輪場・バイク置場の空き状況についてはお問い合わせ下さい。
※ペット飼育やSOHO利用・楽器使用の可否に関しては、建物の管理規約で可能になっていても、お部屋の所有者様によって禁止の場合もございますので御注意下さい。
詳細はメールやお電話にてスタッフまでご相談下さい。フェニックス本郷東大前の周辺地図
似た条件の物件
最近見た物件













