フォレストビュー護国寺 ~ペット・楽器可高級マンション~
♥お気に入りフォレストビュー護国寺 ~ペット・楽器可高級マンション~
♥お気に入り









【築浅】フォレストビュー護国寺 10階
賃料 要問合せ(※) 管理費 敷金 1ヶ月 礼金 1ヶ月 間取り 2LDK 面積 48.48㎡ 階数 10階 状態 要問合せ(※) 入居 即時 更新料 新賃料の1ヶ月 諸費用 取引態様 媒介 設備 オートロック、バイク置場有、駐輪場有、宅配BOX、コンビニ近、BS・CS、光ファイバー、インターネット対応、防犯カメラ、TVモニター付インターホン、ペット可、エレベーター、青柳小学校エリア、10階以上、最上階、眺望良好、二面採光、日当たり良好、カウンターキッチン、コンロ二口以上、ガスキッチン、システムキッチン、ウォークインクローゼット、エアコン、フローリング、独立洗面台、追い焚き機能、浴室乾燥、ウォシュレット、24時間換気システム、バストイレ別、室内洗濯機置場、床暖房、収納、角部屋、礼金1以下、2人入居可、保証会社利用、楽器相談可、SOHO可、法人契約相談可 物件概要
物件名 【築浅】フォレストビュー護国寺 所在地 東京都文京区大塚2-8-3 最寄駅 東京メトロ有楽町線 護国寺駅 徒歩2分
東京メトロ丸ノ内線 新大塚駅 徒歩10分
学区 青柳小学校 構造 RC 階数 地上10階建て 築年月 2013年12月 駐車場 無 駐輪場有(上段:月額200円、下段:月額300円) 備考 【フォレストビュー護国寺】の賃貸情報です。 詳細閲覧ありがとうございます。最新の空室の確認、内覧のご予約はメール・電話にてお問い合わせください。 文京区の賃貸マンション・賃貸アパートはベステックスにおまかせください! 問合番号 822717 更新日 2018/03/06 このお部屋について
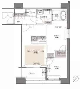
文京区大塚2丁目に佇む【フォレストビュー護国寺】より、10階の角部屋のご紹介です。
2LDKタイプのお部屋です♪
約10.0帖のLDKにはグリル付ガス3口システムキッチンがあり、料理をするには十分なスペースがあるので快適に作業を行えます。
リビングには床暖房を完備で、快適な生活をサポート♪
エアコンも各部屋に設置済みです!
約6.0帖の洋室にはウォークインクローゼット、約4.5帖の洋室には両開きのクローゼットがあるので季節物の衣類や家具家電などの収納に活用することでお部屋を大きく使えます。
梁のないスッキリとした形なので家具の配置をイメージしやすく使い勝手良好です!
バス・トイレは別々になっており、浴室には追焚機能、浴室換気乾燥機、トイレには温水洗浄便座が完備されております。
洗面化粧室には独立洗面台や洗濯機置き場、リネン棚が完備されています。
ペット・楽器・SOHO使用相談可能の充実仕様!
是非一度【フォレストビュー護国寺】をご覧ください!
※室内写真は別室タイプとなります。掲載情報について
※随時更新を心がけておりますが、掲載している物件が万が一成約している場合もございますので予めご了承下さいませ。
※駐車場・駐輪場・バイク置場の空き状況についてはお問い合わせ下さい。
※ペット飼育やSOHO利用・楽器使用の可否に関しては、建物の管理規約で可能になっていても、お部屋の所有者様によって禁止の場合もございますので御注意下さい。
詳細はメールやお電話にてスタッフまでご相談下さい。【築浅】フォレストビュー護国寺の周辺地図
似た条件の物件
最近見た物件













