ラ・トゥール飯田橋 ~高級タワーマンション~
♥お気に入りラ・トゥール飯田橋 ~高級タワーマンション~
♥お気に入り

内観

内観

内観

内観

内観

内観

内観

ラ・トゥール飯田橋 11階
賃料 要問合せ(※) 管理費 敷金 2ヶ月 償却1ヶ月 礼金 0ヶ月 間取り 3LDK 面積 134.10㎡ 階数 11階 状態 要問合せ(※) 入居 相談 更新料 なし 諸費用 取引態様 媒介 設備 タワーマンション、デザイナーズ、フロントサービス有、24時間受付管理、オートロック、バイク置場有、法人契約相談可、駐車場有、駐輪場有、宅配BOX、コンビニ近、BS・CS、光ファイバー、インターネット対応、専用ゴミ置場、防犯カメラ、TVモニター付インターホン、分譲賃貸、東京大学徒歩圏、東京大学自転車圏、礼金なし、ペット可、エレベーター、金富小学校エリア、2階以上、10階以上、リビング20帖以上、眺望良好、南向き、日当たり良好、コンロ二口以上、IHキッチン、システムキッチン、ウォークインクローゼット、エアコン、フローリング、独立洗面台、追い焚き機能、浴室乾燥、ウォシュレット、24時間換気システム、バストイレ別、室内洗濯機置場、床暖房、収納、礼金1以下、敷金なし、2人入居可、保証会社利用 物件概要
物件名 ラ・トゥール飯田橋 所在地 東京都文京区後楽2丁目6-1 最寄駅 都営大江戸線 飯田橋駅 徒歩3分
JR中央・総武線 飯田橋駅 徒歩5分
東京メトロ丸ノ内線 後楽園駅 徒歩8分
学区 金富小学校 構造 SRC 階数 地上34階建て 地下3階 築年月 2010年04月 駐車場 諸条件要確認 備考 保証会社初回:30%、年ごと8,000円 詳細閲覧ありがとうございます。最新の空室の確認、内覧のご予約はメール・電話にてお問い合わせください。 文京区の賃貸マンション・賃貸アパートはベステックスにおまかせください! 問合番号 13065-1109 更新日 2022/10/26 このお部屋について
後楽2丁目に佇むタワーマンション「ラ・トゥール飯田橋」は鉄骨鉄筋コンクリート造地上34階建て!
ご紹介するお部屋は11階部分!
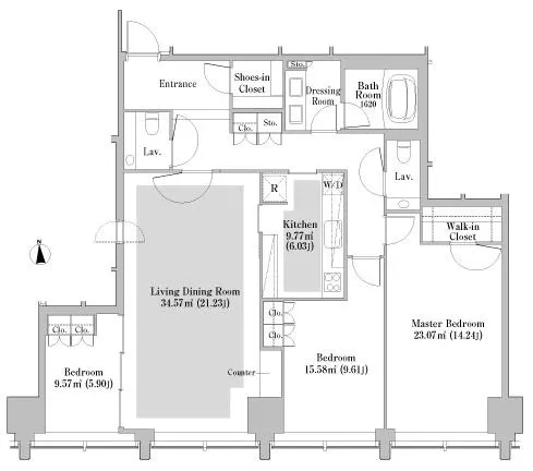
3LDKタイプで専有面積は、134.1㎡と非常に広いお部屋になっています♪
リビングダイニングキッチンは約27.2帖と驚きの広さ!
高層階ですので眺望も良好♪
キッチンスペースも広めに確保されているので、ゆとりを持って調理が可能です!
キッチンにはディスポーザーや浄水器、冷蔵庫といった設備が備え付けられております。
居室については3部屋の洋室が用意されており、使い分けが可能となっています♪
広さは約14.25帖と約9.6帖、約5.9帖となっています。
それぞれ収納も備え付けられているので荷物に邪魔をされることもありません!
子供部屋や書斎、寝室など様々な使い方が可能です!
~気になる水周り~
浴室とトイレの独立設計で何かを気にすることなくお風呂トイレに入ることができます!
浴室の前には洗濯機置き場の付いた脱衣所がありますので、脱いだ洗濯物をそのまま洗濯機に入れるということも可能!
また、人気設備の独立洗面台も完備していますので、朝の身だしなみチェックやお化粧など様々な場面で活躍します!
ペットの飼育や楽器の相談が可能な「ラ・トゥール飯田橋」を是非、1度ご覧ください♪
※3年の定期借家契約物件になります。
※写真は同物件別部屋の物になります。掲載情報について
※随時更新を心がけておりますが、掲載している物件が万が一成約している場合もございますので予めご了承下さいませ。
※駐車場・駐輪場・バイク置場の空き状況についてはお問い合わせ下さい。
※ペット飼育やSOHO利用・楽器使用の可否に関しては、建物の管理規約で可能になっていても、お部屋の所有者様によって禁止の場合もございますので御注意下さい。
詳細はメールやお電話にてスタッフまでご相談下さい。ラ・トゥール飯田橋の周辺地図
似た条件の物件
最近見た物件










